Spacious refurbishment project with strong rental potential near local amenities.
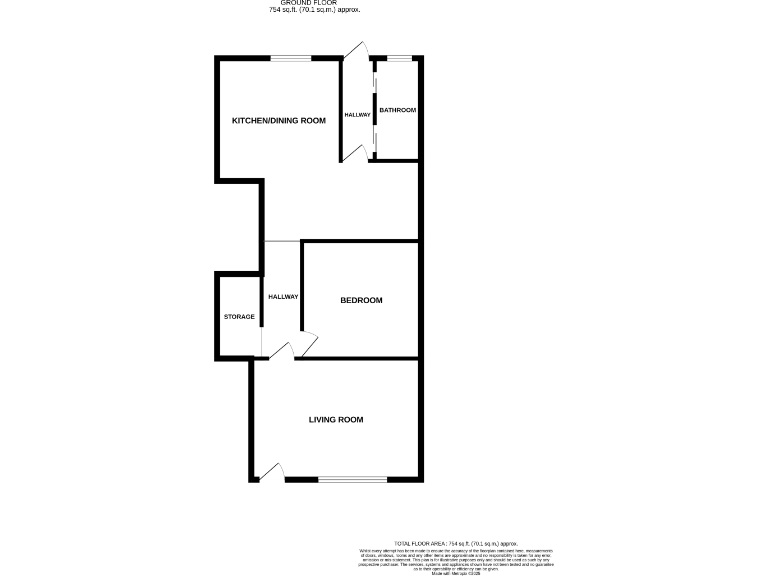
Approx. 754 sq ft ground-floor one-bedroom apartment
A spacious ground-floor one-bedroom apartment of approximately 754 sq ft, offered at auction and sold leasehold. The property is a blank canvas requiring full renovation: cosmetic and water-damage repairs are evident in the kitchen, and the building is likely uninsulated solid brick. Heating is via a mains-gas boiler and radiators; glazing is double but install date is unknown.
This lot suits investors or experienced DIY buyers looking to add value. The large internal footprint, separate living room and kitchen/diner, private entrance and straightforward room layout give scope to create a contemporary rental or a comfortable single-occupant home once refurbished. Broadband speeds and mobile signal are strong for the area.
Buyers should note material considerations: the area is classified as deprived with high local crime rates, and the property will be sold at auction with a £3,600 administration fee payable on exchange (see legal pack for further disbursements). Tenure is leasehold and the building dates from c.1900–1929; walls are solid brick with assumed no cavity insulation.
Location is convenient for local shops, bus links to Barnsley and nearby schools (several rated Good or Outstanding), which supports lettability after works. There is no flood risk recorded for this address.
1 bedroom apartment for sale in 30 Church Street, Cudworth, Barnsley, South Yorkshire S72 8JZ, S72 — £41,000 • 1 bed • 1 bath • 754 ft²
2 bedroom apartment for sale in 24 Smithies Street, Barnsley, South Yorkshire S71 1RB, S71 — £35,000 • 2 bed • 1 bath • 492 ft²
1 bedroom flat for sale in Smithies Street, Barnsley, S71 1RB, S71 — £35,000 • 1 bed • 1 bath • 506 ft²
1 bedroom apartment for sale in Brooke Close, Deepcar, S36 — £85,000 • 1 bed • 1 bath • 323 ft²
2 bedroom terraced house for sale in 84. Honeywell Lane, Barnsley, South Yorkshire S71 1JH, S71 — £60,000 • 2 bed • 1 bath • 911 ft²
2 bedroom apartment for sale in Belgrave Road, Barnsley, S71 — £50,000 • 2 bed • 1 bath • 450 ft²














































