Bright one-bedroom conversion with parking and private garden near Crystal Palace Park.
Top-floor conversion with vaulted ceilings and skylights
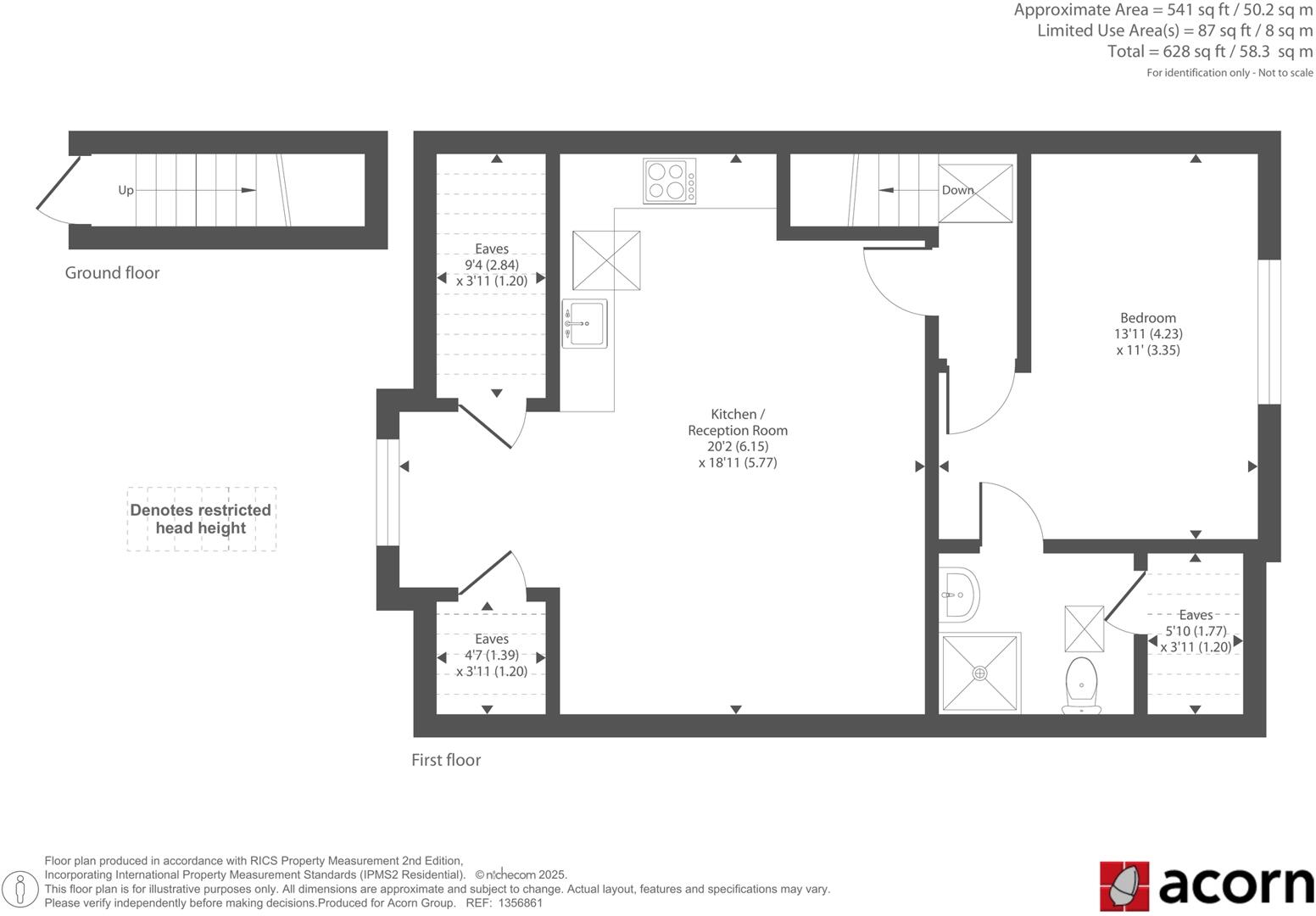
Set on the top floor of an attractive red-brick Victorian semi, this one-bedroom conversion offers bright, airy living with vaulted ceilings and skylights. At around 628 sq ft (including eaves storage) the apartment feels larger than a typical one-bed and benefits from useful under-eaves storage and cleverly configured open-plan living. An allocated off-street parking space and a private section of rear garden add practical outdoor and parking benefits rarely found at this price in SE19.
The accommodation includes a generous open-plan kitchen/reception over 20 feet long, a double bedroom tucked to the rear and a modern bathroom. Vaulted ceilings and large windows produce strong natural light and leafy views across surrounding green space, making this a peaceful spot while staying well connected to central London via nearby stations.
Notable practical points: the property has an Energy Efficiency Rating of E and the building’s solid brick walls are assumed uninsulated, so heating costs and upgrade work to improve efficiency should be considered. Eaves areas include restricted head height and are best used for storage rather than living space. The flat is sold as share of freehold, which is a buying advantage, but buyers should check the freehold arrangements and any communal maintenance responsibilities.
This home will suit a first-time buyer or professional seeking a characterful, low-crime neighbourhood close to Crystal Palace Park and excellent schools. It offers immediate move-in appeal with potential to add value through energy-efficiency improvements and cosmetic updating where desired.
1 bedroom apartment for sale in Auckland Road, Crystal Palace, London, SE19 — £335,000 • 1 bed • 1 bath • 523 ft²
2 bedroom flat for sale in Maberley Road, Crystal Palace, London, SE19 — £550,000 • 2 bed • 1 bath • 760 ft²
2 bedroom flat for sale in Auckland Road, Crystal Palace, London, SE19 — £550,000 • 2 bed • 1 bath • 836 ft²
1 bedroom apartment for sale in Thicket Road, Crystal Palace, London, SE20 — £325,000 • 1 bed • 1 bath • 501 ft²
2 bedroom flat for sale in Maberley Road, Crystal Palace, London, SE19 — £425,000 • 2 bed • 1 bath • 743 ft²
1 bedroom flat for sale in Maberley Road, Crystal Palace, SE19 — £300,000 • 1 bed • 1 bath • 649 ft²


























































