Chain-free, renovated three-bed bungalow with garage and generous garden near Emsworth harbour.
Chain free detached bungalow on a quiet cul-de-sac
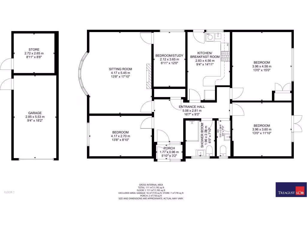
Set on a peaceful cul‑de‑sac just over a mile from Emsworth’s harbourside, this detached three-bedroom bungalow combines modern interior fittings with generous, single-storey living. The kitchen/breakfast room is newly finished with oak worktops and integrated appliances, and the sitting room benefits from a bow window that floods the space with light. The layout offers flexibility with an optional fourth bedroom or home office.
Outside, the plot is a strong practical asset: a decent rear garden with covered patio, mature hedging for privacy, side driveway for multiple cars and a detached garage with power, lighting and additional storage. Practical comforts include a Worcester combination boiler, fast broadband and excellent mobile signal. The property is freehold and offered chain free.
Notable considerations: council tax is above average for the area and there is only one shower room plus an additional WC, which may feel limiting for some households. The exterior shows mid‑20th century brickwork that could benefit from cosmetic updating to match the recently renovated interior. This home will suit buyers seeking single‑level living, easy access to local walks and coastal amenities, or those looking to downsize without sacrificing space.
3 bedroom detached bungalow for sale in Nore Farm Avenue, Emsworth, PO10 — £525,000 • 3 bed • 1 bath • 1061 ft²
3 bedroom detached bungalow for sale in Orchard Lane, Emsworth , PO10 — £525,000 • 3 bed • 2 bath • 886 ft²
3 bedroom chalet for sale in Stein Road, Emsworth, PO10 — £575,000 • 3 bed • 2 bath • 1392 ft²
2 bedroom semi-detached bungalow for sale in Selangor Avenue, Emsworth, PO10 — £395,000 • 2 bed • 1 bath • 706 ft²
2 bedroom detached bungalow for sale in Neville Gardens, Emsworth, Hampshire, PO10 — £290,000 • 2 bed • 1 bath • 584 ft²
2 bedroom bungalow for sale in Selangor Avenue, Emsworth, Hampshire, PO10 — £395,000 • 2 bed • 1 bath • 1041 ft²














































































