Move-in ready home with private garden and garage near station.
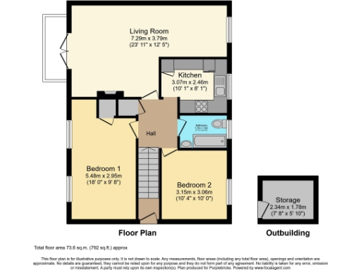
Two double bedrooms, bright open-plan lounge/diner
Private rear garden with side access and storage shed
Balcony and allocated garage parking included
Newly renovated — move-in ready condition
Approx 792 sq ft total internal area
Close to town centre and train station, good commuter links
Leasehold with c.84–85 years remaining — extension advised
Service charge £400; ground rent £10
This refurbished first-floor maisonette offers bright, move-in-ready accommodation ideal for first-time buyers seeking a low-maintenance home near Welwyn Garden City centre. The open-plan lounge/diner benefits from dual-aspect light and flows to a fitted kitchen, while two double bedrooms provide comfortable sleeping space. A private rear garden, balcony and an allocated garage add useful outdoor and parking space.
Practical running costs are straightforward: a below-average service charge of £400 and a nominal ground rent of £10. Broadband and mobile signal are strong and local amenities, shops and eateries are within easy reach. Regular trains to London King’s Cross make commuting practical.
Important lease information: the property is leasehold with approximately 84–85 years remaining. That lease length is short enough to make an early lease extension advisable—buyers should obtain legal and valuation advice before committing. The property has been newly renovated, so immediate major works are unlikely, though buyers should check details during conveyancing.
2 bedroom flat for sale in 51 Bridge Road East, Welwyn Garden City, AL7 — £370,000 • 2 bed • 3 bath • 846 ft²
2 bedroom flat for sale in Bessemer Road, Welwyn Garden City, AL7 — £325,000 • 2 bed • 2 bath • 764 ft²
2 bedroom flat for sale in Blossom Drive, Welwyn Garden City, AL7 — £325,000 • 2 bed • 2 bath • 677 ft²
2 bedroom maisonette for sale in Cornerfield, Hatfield, AL10 — £290,000 • 2 bed • 1 bath • 724 ft²
2 bedroom apartment for sale in Bridge Road East, Welwyn Garden City, Hertfordshire, AL7 — £345,000 • 2 bed • 2 bath • 807 ft²
2 bedroom flat for sale in Amethyst Walk, Welwyn Garden City, Hertfordshire, AL8 — £300,000 • 2 bed • 1 bath • 759 ft²


















































































