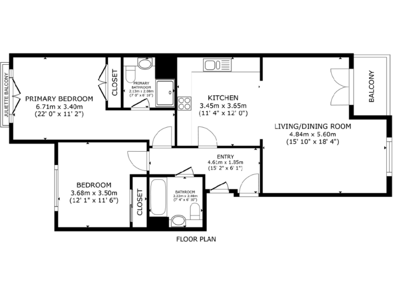
Bright, low-maintenance two-bedroom home near shops and transport links.
Large open-plan lounge and modern kitchen with integrated appliances
Private balcony and well-maintained communal garden grounds
Generous principal bedroom with en-suite shower room
Approximately 947 sq ft — unusually spacious two-bedroom flat
Freehold tenure; EPC B indicates good energy efficiency
Secure communal access with intercom; first-floor position
Off-street private and visitor parking available
Area recorded as very deprived; council tax above average
This bright first-floor flat combines contemporary styling with practical living space, making it a strong option for first-time buyers or professionals. The open-plan lounge and modern kitchen flow onto a private balcony, offering a pleasant spot for morning coffee and natural light throughout the main living area. The principal bedroom is generous and includes an en-suite shower room; a second double bedroom provides flexible space for guests or a home office.
The development offers secure communal access with intercom and well-maintained garden grounds, alongside private and visitor off-street parking. At approximately 947 sq ft, the flat feels notably spacious for a two-bedroom apartment, and an EPC rating of B indicates good energy performance. The property is freehold, simplifying ownership compared with leasehold flats.
Location is a clear strength: nearby shops, cafés, parks and frequent bus services put daily needs and Stirling city centre within easy reach. Good local schools make the area workable for small families, while transport links suit commuters.
Considerations: the wider area is recorded as very deprived, which may affect long-term neighbourhood perception. Broadband speeds are average rather than high-speed; council tax is above average. Overall, this contemporary flat offers low-maintenance, well-proportioned accommodation with clear appeal for buyers seeking an accessible, move-in-ready home or a rental investment.
2 bedroom flat for sale in Glendevon Drive, Stirling, FK8 — £145,000 • 2 bed • 1 bath • 657 ft²
2 bedroom apartment for sale in Drip Road, Stirling, FK8 — £140,000 • 2 bed • 1 bath • 678 ft²
2 bedroom flat for sale in 3 Chandlers Court, Stirling, FK8 — £189,000 • 2 bed • 2 bath • 740 ft²
2 bedroom flat for sale in Carsaig Court, Bridge Of Allan, FK9 — £143,000 • 2 bed • 1 bath • 642 ft²
2 bedroom flat for sale in Bannockburn Road, Stirling, FK7 — £106,000 • 2 bed • 1 bath • 390 ft²
2 bedroom flat for sale in Hazelbank Gardens, Stirling, FK8 — £95,000 • 2 bed • 1 bath










































































