Chain-free two-bedroom apartment with garage and long lease, walking distance to station..
Town-centre location, half-mile to Farnham train station
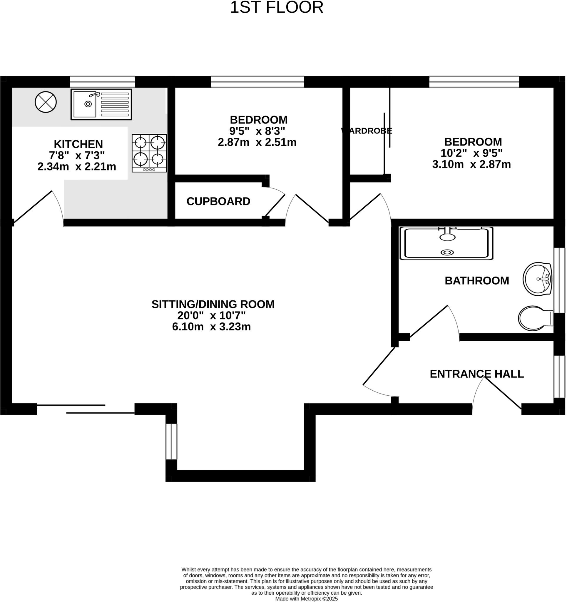
Set within a mews-style development in the heart of Farnham, this two-bedroom apartment offers a practical, chain-free entry into town-centre living. The open-plan living/dining area is bright thanks to large windows and French doors that lead to a small balcony — ideal for morning coffee or fresh air. The property includes an allocated garage and communal visitor parking, useful extras for a central location.
The layout is straightforward and efficient: two comfortable bedrooms, a front-positioned bathroom and a compact kitchen. The kitchen is functional but dated, offering clear scope for modernisation if you want to add value. The apartment is heated by a mains-gas boiler and benefits from double glazing installed after 2002. EPC rating C (79) and a long lease (around 109 years remaining) give reassurance on running costs and security of tenure.
Practical costs and responsibilities are important here: a service charge around £1,800 pa and a small annual ground rent (£78) apply. The overall internal area is small (c. 441 sq ft), so this will suit buyers who prioritise central convenience over generous living space. The property is offered chain-free and lies within walking distance of Farnham train station, shops and parks, making it attractive to first-time buyers, professionals, or investors seeking a let-ready town-centre flat.
For those prepared to update the kitchen and personalise finishes, the apartment presents a low-maintenance base in a well-connected, affluent area. Check lease and charges with your solicitor before exchange to confirm details and future costs.
2 bedroom apartment for sale in West Mead, The Hart, Farnham, Surrey, GU9 — £285,000 • 2 bed • 1 bath • 602 ft²
2 bedroom flat for sale in Allington Close, Farnham, Surrey, GU9 — £289,000 • 2 bed • 2 bath • 760 ft²
1 bedroom apartment for sale in Castle House, 20 Bear Lane, Farnham, GU9 — £180,000 • 1 bed • 1 bath • 488 ft²
2 bedroom flat for sale in The Borough, Farnham, Surrey, GU9 — £320,000 • 2 bed • 1 bath • 850 ft²
2 bedroom apartment for sale in Cambridge Place, Farnham, Surrey, GU9 — £354,000 • 2 bed • 2 bath • 725 ft²
2 bedroom apartment for sale in Dogflud Way, Farnham, Surrey, GU9 — £340,000 • 2 bed • 1 bath • 682 ft²










































































































