Compact two-bedroom bungalow with garage and countryside views, ideal for downsizers.
Easterly garden backing onto open field with pleasant morning sun
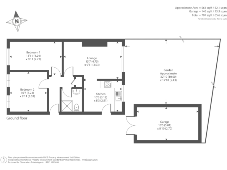
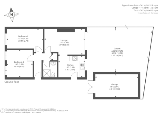
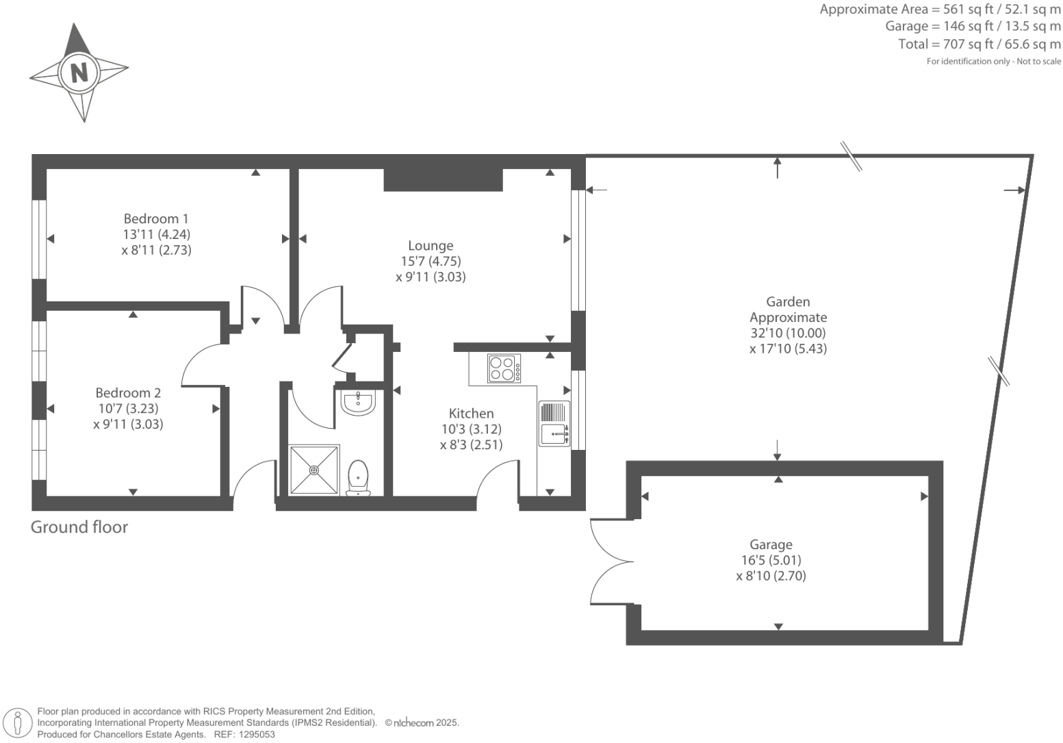
A compact two-bedroom semi-detached bungalow in Chipping Norton, ideal for someone looking to downsize or retire in a quiet town-fringe setting. The property sits in an elevated position, with countryside views to the front and an easterly-facing rear garden that looks over an open field. Practical features include a garage, off-street parking and double glazing fitted after 2002.
The interior is traditional in layout with a principal reception room of about 15'7, a 10'3 kitchen and a single family bathroom. Built in the late 1960s/early 1970s, the bungalow is generally well presented but the kitchen and some fixtures are dated and will benefit from updating to suit contemporary tastes. The overall floor area is small (approximately 559 sq ft), so storage and living space are limited compared with modern homes.
Freehold tenure, mains gas heating with boiler and radiators, and affordable council tax are practical pluses. The location is convenient—under 0.4 mile from Chipping Norton town centre and close to several well-regarded primary and secondary schools. Note the local area records above-average crime; prospective buyers should consider local safety measures.
This property offers straightforward, low-step living with scope to modernise. Early viewings are recommended to appreciate the outlook, plot orientation and suitability for a downsizer or someone seeking a manageable home with countryside character close to town amenities.
2 bedroom detached bungalow for sale in Marlborough Road, Chipping Norton, OX7 — £365,000 • 2 bed • 1 bath • 780 ft²
3 bedroom bungalow for sale in Chipping Norton, Oxfordshire, OX7 — £300,000 • 3 bed • 2 bath • 992 ft²
3 bedroom bungalow for sale in Lewis Road, Chipping Norton, Oxfordshire, OX7 — £500,000 • 3 bed • 2 bath • 885 ft²
2 bedroom terraced bungalow for sale in Chipping Norton, Oxfordshire, OX7 — £210,000 • 2 bed • 1 bath • 643 ft²
2 bedroom detached bungalow for sale in Marlborough Road, Chipping Norton, OX7 — £425,000 • 2 bed • 1 bath • 763 ft²
3 bedroom semi-detached bungalow for sale in Compton Court, Long Compton, CV36 — £650,000 • 3 bed • 1 bath • 1176 ft²






















































































