**Standout Features:**
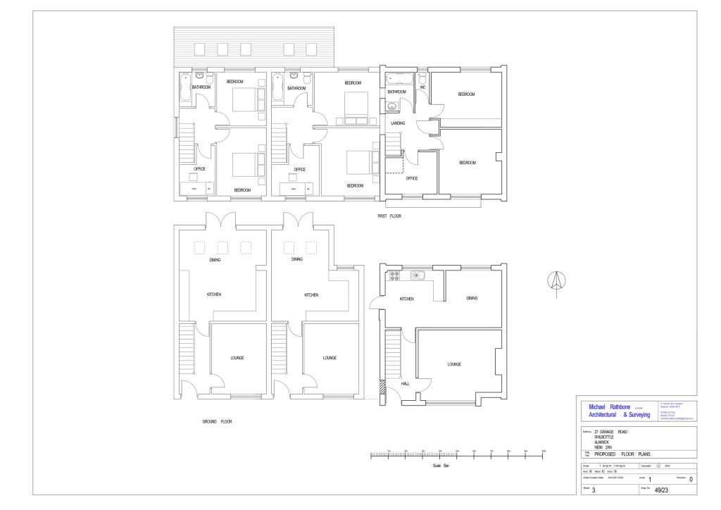
- Former convenience store transformed into opportunity for 2 new dwellings plus refurbishment of existing house
- Full planning permission in place for alterations
- Just over 1,000 sq ft per unit with off-street parking and gardens
- Located in the desirable village of Shilbottle, near Alnwick
- Affordable council tax band (B) at £1,777.74
- Close proximity to local amenities and excellent transport links
This remarkable property on Grange Road presents a unique opportunity for developers and investors looking to capitalize on the growing demand for residential space in a charming village. With full planning permission already secured, the project involves converting an unused convenience store into two two-bedroom homes, alongside minor updates to the existing dwelling. Each unit spans over 1,000 sq ft, offering ample space, off-street parking, and gardens for relaxation.
Nestled in the heart of Shilbottle Village, this location boasts a pleasant mix of rural tranquility and vital amenities including shops, a popular café, and a health club—all within walking distance. Families will appreciate the nearby primary schools, all rated 'Good' by Ofsted. Convenience meets accessibility, with Alnwick town just 2 miles away and excellent transport options including the A1 and Alnmouth mainline railway station.
While this property presents a fantastic investment opportunity, potential buyers should factor in the refurbishment required to bring the existing house to its full potential. Take advantage of this enticing offering in a low-crime, affluent area—this property won't last long!
Land for sale in Land To The West Of 1 North Side, Shilbottle, Alnwick, NE66 — £260,000 • 1 bed • 1 bath • 20473 ft²
Commercial property for sale in 1 A-D Market Place, Alnwick, Northumberland, NE66 — £750,000 • 1 bed • 1 bath • 4237 ft²
6 bedroom terraced house for sale in Alnwick, Northumberland, NE66 — £260,000 • 6 bed • 4 bath • 2332 ft²
Plot for sale in Longframlington, Morpeth, Northumberland, NE65 — £275,000 • 1 bed • 1 bath • 2588 ft²
3 bedroom semi-detached house for sale in Victoria Crescent, Alnwick, Northumberland, NE66 1RQ, NE66 — £265,000 • 3 bed • 1 bath • 1707 ft²
3 bedroom semi-detached house for sale in Farriers Rise, NE66 — £210,000 • 3 bed • 2 bath • 948 ft²














