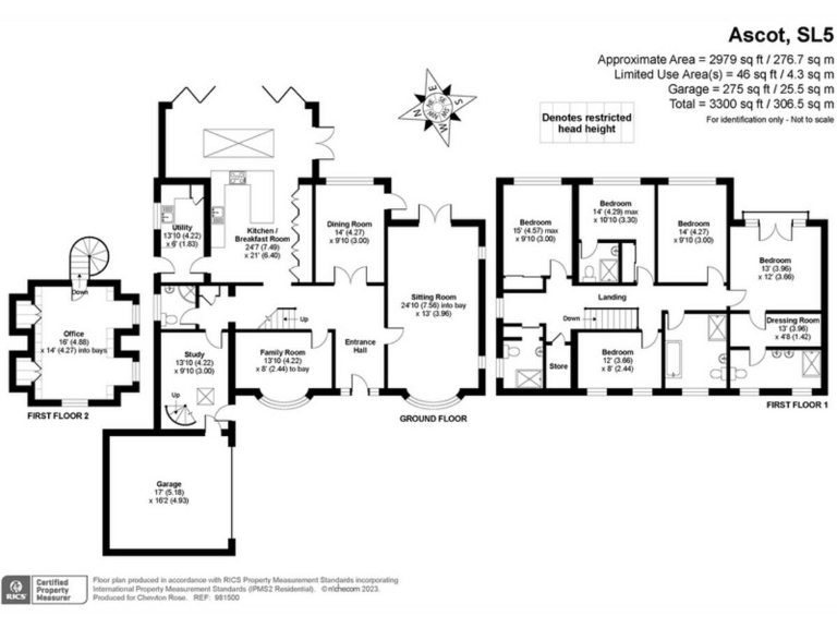
Prestigious South Ascot detached home on a large plot, ideal for growing families and convenient commuting..
Five bedrooms and four bathrooms — ideal for large families
Set on a peaceful no-through road in South Ascot, this five-bedroom detached home sits on a very large plot and offers flexible space for a growing family. The property combines traditional brick character with a modern open-plan kitchen/dining area that opens to the garden via bi-folding doors, creating a bright social hub with high ceilings and skylights.
The location is a key draw: short walk to Ascot High Street, 0.9 miles to Ascot train station and within easy reach of Charters School and several highly rated primary and independent schools. The setting is semi-rural and prestigious while remaining convenient for everyday amenities, sports facilities and woodland nearby.
Built in the late 1960s–1970s with cavity walls and double glazing installed after 2002, the house is solidly constructed and warmed by a mains-gas boiler and radiators. With almost 3,000 sq ft and around ten rooms, it suits large families seeking size and privacy, but also offers scope for updating in places to maximise its potential.
Practical considerations: the property is freehold with a garage and gravel driveway, excellent mobile signal and fast broadband. Council tax is noted as quite expensive and the house’s era means some elements may benefit from refurbishment to meet contemporary tastes and efficiencies.
4 bedroom house for sale in Llanvair Close, Ascot, SL5 — £2,000,000 • 4 bed • 3 bath • 3149 ft²
4 bedroom detached house for sale in Whynstones Road, Ascot, SL5 — £1,625,000 • 4 bed • 2 bath • 3871 ft²
5 bedroom detached house for sale in Winkfield Road, Ascot, SL5 — £1,350,000 • 5 bed • 3 bath • 2786 ft²
5 bedroom detached house for sale in Murray Court, Ascot, SL5 — £995,000 • 5 bed • 4 bath • 1901 ft²
4 bedroom detached house for sale in Hurstwood, Ascot, SL5 — £1,250,000 • 4 bed • 3 bath • 2271 ft²
5 bedroom detached house for sale in Llanvair Drive, Ascot, Berkshire, SL5 — £1,500,000 • 5 bed • 3 bath • 3018 ft²


















































































































































































