South-facing garden, character detail and flexible living for growing households.
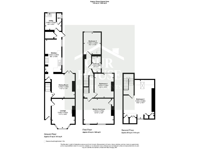
Four double bedrooms over three floors
This three-storey Victorian mid-terrace offers flexible family living across approximately 1,460 sq ft. Ground floor reception rooms retain period detail—bay window, fireplaces, cornicing—paired with a generous breakfast kitchen, utility room and downstairs WC for everyday practicality. The property is freehold and benefits from fast broadband and a south-facing rear garden ideal for outdoor dining.
Sleeping accommodation is arranged over the first and top floors with four double bedrooms and a single family bathroom. The top-floor bedroom is particularly large and provides scope for a home office or play area. Nearby schools are rated Good, making the house suitable for families seeking space close to town amenities.
The house will appeal to buyers looking to personalise a period home: it is presented in lived-in condition and would benefit from modernisation to kitchens, bathroom and decorative finishes. The building is solid brick with assumed no wall insulation, and the EPC is a D, so buyers should allow budget for insulation and energy upgrades if desired. There is only one family bathroom which may be a constraint for larger households.
Location strengths include a quiet residential street, low flood risk and low council tax band. Consider that the wider area scores as relatively deprived and overall crime is average. The plot is modest in size and the property has a small forecourt; renovation potential and careful updating could significantly increase comfort and value.
2 bedroom terraced house for sale in Clifford Street, Hornsea, HU18 — £159,950 • 2 bed • 1 bath • 1038 ft²
4 bedroom terraced house for sale in Cliff Road, Hornsea, HU18 — £211,000 • 4 bed • 2 bath • 1673 ft²
4 bedroom detached house for sale in Ashcourt Drive, Hornsea, HU18 — £279,950 • 4 bed • 3 bath • 1314 ft²
5 bedroom detached house for sale in Burton Road, Hornsea, HU18 — £499,950 • 5 bed • 1 bath • 2412 ft²
3 bedroom semi-detached house for sale in Beresford Avenue, Hornsea, HU18 — £165,000 • 3 bed • 1 bath • 985 ft²
5 bedroom end of terrace house for sale in Hartley Street, Hornsea, HU18 — £425,000 • 5 bed • 2 bath • 3300 ft²










































































































