High-yield nine-bedroom building near rail links and large rear garden.
- Freehold nine-bedroom HMO with two flats, total gross rent £63,000 pa
- Opposite Totnes railway station — direct trains to London Paddington
- Large rear garden and driveway with several off-street parking spaces
- Edwardian/Victorian period features; high ceilings throughout
- Annual running costs £12,107.72 pa (very expensive)
- Sale by public auction; bidders must consult legal pack and tenancies
- Elevated local crime rates; factor into tenant demand and insurance
- EPC ratings D–E; likely need energy improvements and possible refurbishment
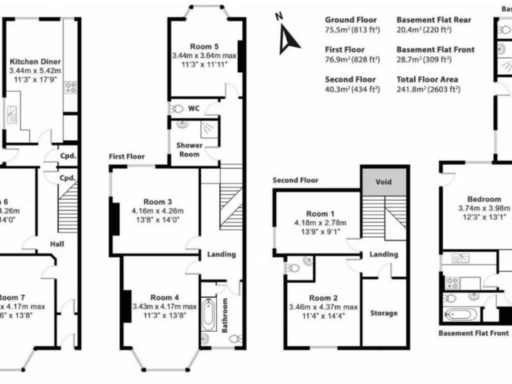
A substantial nine-bedroom House in Multiple Occupation (HMO) located directly opposite Totnes railway station, offering immediate rental income and strong connectivity to London. The freehold building extends to about 2,594 sq ft, arranged as multiple rooms and two flats, with current gross rent reported at £63,000 per annum.
The property benefits from a large rear garden, driveway with several off-street parking spaces and high ceilings with period Edwardian/Victorian features that appeal to tenants and offer scope for repositioning. The site may have further development potential, subject to planning, which could add long-term value.
Important considerations for buyers: the sale is by public auction with a formal legal pack and schedule of tenancies — bidders should review tenancies and rents carefully. Annual running costs are high at £12,107.72 and the area records elevated crime levels, both material for operating an HMO. EPC ratings range D–E across units; energy upgrades may be required to improve efficiency and compliance.
This asset suits investors or portfolio buyers seeking an income-producing, period HMO with near-term yield and medium-term enhancement potential. Transparency on tenancies, service charges and any required refurbishment will be key to assessing net return and future strategy.
9 bedroom house of multiple occupation for sale in 1 Queens Terrace, Totnes, Devon, TQ9 5JQ, TQ9 — £500,000 • 9 bed • 4 bath • 2594 ft²
Commercial property for sale in Auction Lot: 7 x Bedroom HMO, plus 2 x Self-Contained Flats, Totnes, Devon, TQ9 — £500,000 • 1 bed • 1 bath
3 bedroom detached house for sale in 10 Bank Lane, Totnes, TQ9 — £350,000 • 3 bed • 1 bath • 3127 ft²
Mixed use property for sale in 53-55 & 59 Market Street, Torquay, Torbay, TQ1 3AW, TQ1 — £150,000 • 1 bed • 1 bath
3 bedroom flat for sale in Union Street, Torquay, Devon, TQ2 — £175,000 • 3 bed • 1 bath • 646 ft²
12 bedroom apartment for sale in 33 St. Andrews Road, Paignton, Devon, TQ4 6HA, TQ4 — £455,000 • 12 bed • 1 bath • 5038 ft²














































































