South-facing garden, excellent transport links and low running costs for commuting families.
South-facing rear garden ideal for afternoon sun and outdoor time.
Double driveway with off-street parking for two cars.
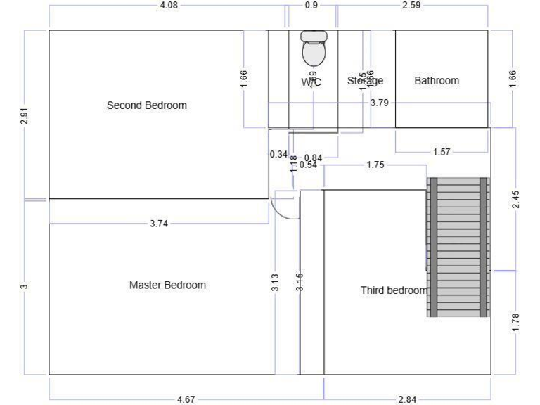
Three bedrooms and two bathrooms—useful for family life.
Compact interior (≈775 sq ft); modest room sizes throughout.
Requires minor modernisation; potential to reconfigure ground floor.
Located 0.5 mile to Baguley Metrolink and close to Wythenshawe Park.
Area shows high deprivation; check local services and school choices.
EPC C, gas central heating, double glazing; no flood risk.
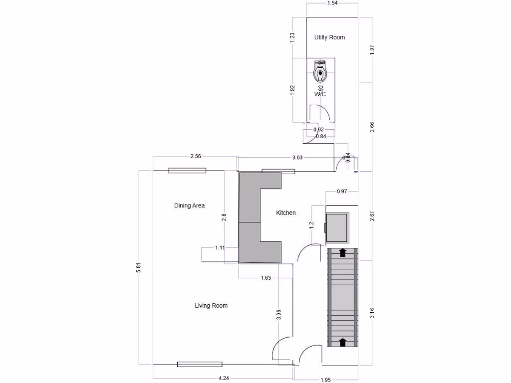
This three-bedroom mid-terrace offers practical family living close to transport links and green space. The house includes two bathrooms, a welcoming reception room and a south-facing rear garden that captures afternoon sun. A double driveway provides convenient off-street parking for multiple cars.
The layout suits a small or growing family, with straightforward ground-floor flow and a modest rear garden for children and pets. The property is freehold, has gas central heating, double glazing and an EPC rating of C—comfort and running costs are acceptable for the area.
Note the property is compact (approximately 775 sq ft) and sits on a small plot; internal space is modest and some modernisation would improve kitchen/dining circulation. The surrounding area is classified as having high deprivation and some nearby schools have mixed Ofsted outcomes; buyers should consider local services and schools when deciding.
Good commuter access is a genuine selling point: under a mile to Wythenshawe Park, around 0.5 mile to Baguley Metrolink and simple access to the M56/M60 for city-center or regional travel. There is no flood risk reported and council tax is low (Band A), which helps running costs.
3 bedroom terraced house for sale in Wythenshawe Road, Manchester, M23 — £300,000 • 3 bed • 1 bath • 1114 ft²
3 bedroom semi-detached house for sale in Rotherby Road, Manchester, M22 — £250,000 • 3 bed • 1 bath • 712 ft²
3 bedroom end of terrace house for sale in Yattendon Avenue, Manchester, Greater Manchester, M23 — £275,000 • 3 bed • 1 bath • 939 ft²
3 bedroom semi-detached house for sale in Meliden Crescent, MANCHESTER, Lancashire, M22 — £280,000 • 3 bed • 1 bath • 767 ft²
4 bedroom end of terrace house for sale in Belsay Drive, Manchester, Greater Manchester, M23 — £240,000 • 4 bed • 2 bath • 1314 ft²
3 bedroom end of terrace house for sale in Dartington Close, Manchester, Greater Manchester, M23 — £275,000 • 3 bed • 1 bath • 735 ft²


































































































