Spacious garden plot and extension potential for growing families.
- Detached period cottage with strong Cotswold character
- Large plot approximately 0.68 acre, landscaped gardens and terrace
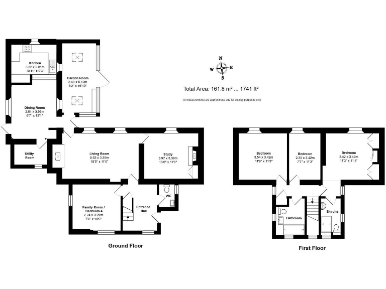
- Four reception rooms; ground-floor room could be fourth bedroom
- March 2024 planning permission for wraparound kitchen/family room
- Gated private off-street parking with secondary driveway access
- Oil-fired heating and private drainage (ongoing running costs)
- Low ceilings in parts of the house; some rooms are cozy
- Wiltshire Council Tax Band F; mobile signal average
Foxleigh is a detached period Cotswold cottage set in about 0.68 acre of thoughtfully landscaped gardens and lawns, offering open rural views and strong privacy. The house delivers abundant reception space across four reception rooms plus an open-plan kitchen/dining area with a vaulted ceiling and an oak garden room extension — practical room layouts for family life and entertaining.
The principal bedroom has an en-suite and there are two further bedrooms and a family shower room. One ground-floor reception room could easily serve as a fourth bedroom or home office. March 2024 planning permission was granted for a wraparound kitchen/family room at the rear, with potential to add a bedroom above subject to further approvals — useful scope to enlarge and personalise the home.
Practical matters are straightforward: gated off-street parking, a secondary driveway, oil-fired heating and private drainage. Drawbacks to note include low ceilings in parts of the cottage, oil heating and private drainage (ongoing running costs), and Wiltshire Council Tax Band F which is relatively expensive. Mobile signal is average despite ultrafast broadband availability.
This property will suit families seeking a character home in a quiet rural setting with garden space for children, hobbies or entertaining, and buyers wanting a renovation/extension opportunity to add value and adapt the layout to modern living.
4 bedroom detached house for sale in The Fox, Purton, Swindon, Wiltshire, SN5 — £750,000 • 4 bed • 2 bath • 2215 ft²
5 bedroom detached house for sale in Flistridge Road, Upper Minety, Malmesbury, Wiltshire, SN16 — £1,000,000 • 5 bed • 2 bath • 2360 ft²
4 bedroom detached house for sale in Silver Street, Minety, Malmesbury, Wiltshire, SN16 — £675,000 • 4 bed • 2 bath • 2022 ft²
5 bedroom detached house for sale in Barn Cottages, West Kington, Wiltshire, SN14 — £1,595,000 • 5 bed • 3 bath • 3723 ft²
2 bedroom detached house for sale in Clatford Bottom, Marlborough, SN8 — £750,000 • 2 bed • 1 bath • 1505 ft²
5 bedroom detached house for sale in Little Somerford, SN15 — £1,495,000 • 5 bed • 3 bath • 2800 ft²














































































