Affordable 50% stake with private garden and two parking spaces ideal for starters.
50% shared ownership with Orbit, monthly rent £297.82
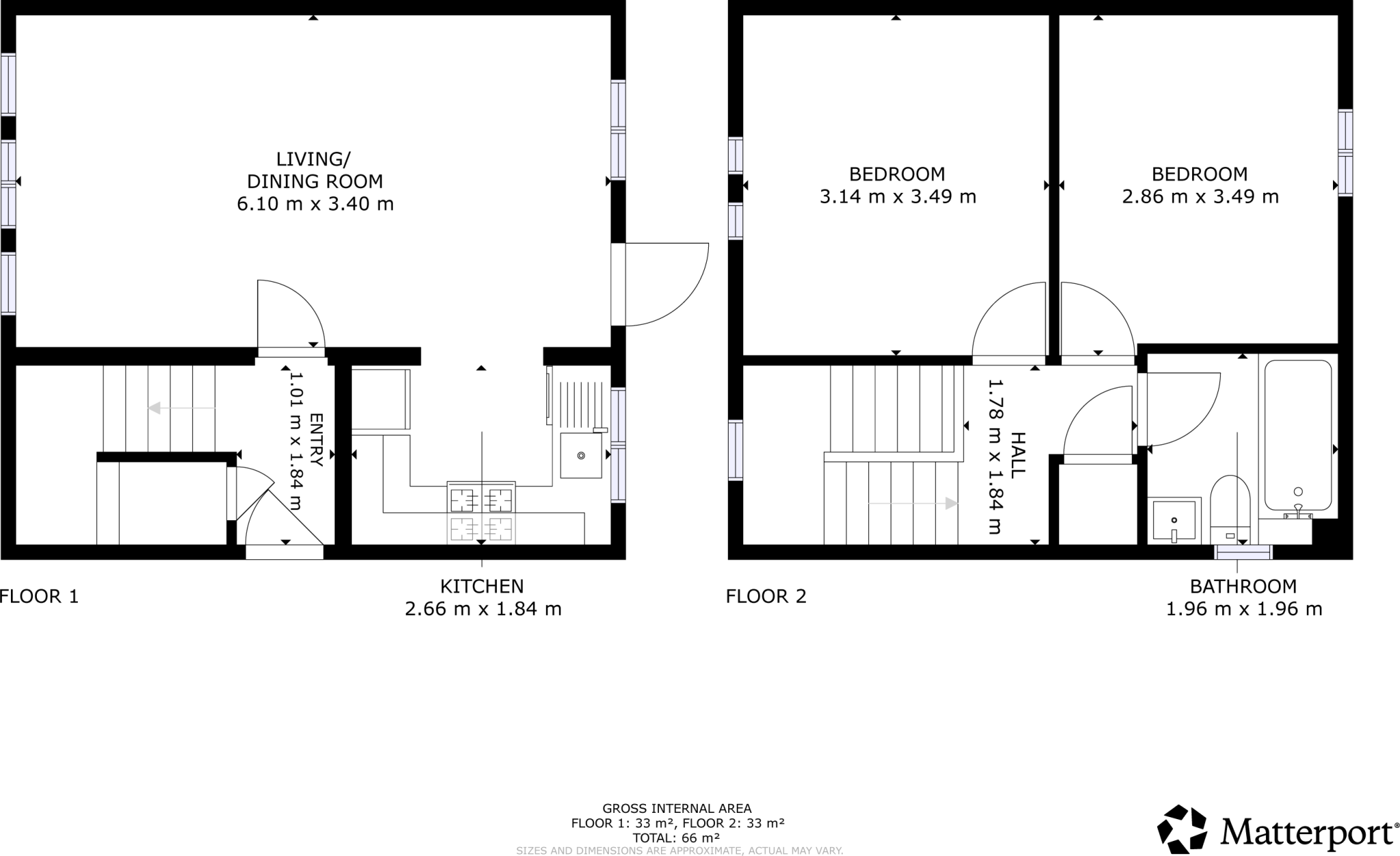
A 50% shared-ownership two-bedroom semi in Crownhill, offered with private front and rear gardens and two off-street parking spaces. The home is a practical size (approx. 678 sq ft) with a modern fitted kitchen and bathroom, double glazing and gas central heating — ready to move into for a first-time buyer seeking an affordable foothold in Milton Keynes.
This property comes with Orbit shared ownership: you buy a 50% share and pay a monthly rent of £297.82. There is a service charge (listed at £297.82) and the lease has around 73 years remaining. These tenure details are important — some mortgage lenders may refuse lending on shorter leases, so check finance options early.
Positioned close to Milton Keynes Central, the house benefits from good mobile signal, fast broadband and local schools rated Good or Outstanding. The area suits young families and commuters, though local recorded crime is above average; buyers should factor neighbourhood safety and security measures into their plans.
Overall, this is a practical, affordable entry into the local market with immediate usability and scope to personalise. The main trade-offs are the shared-ownership arrangement, ongoing charges, and the limited lease length; suitable buyers will prioritise affordability and location over maximum long-term equity growth.
2 bedroom semi-detached bungalow for sale in Chaplin Grove, Crownhill, Milton Keynes, MK8 — £130,000 • 2 bed • 1 bath • 582 ft²
3 bedroom semi-detached house for sale in Wingfield Grove, Middleton, Milton Keynes, MK10 — £200,000 • 3 bed • 1 bath • 808 ft²
2 bedroom terraced house for sale in Duchess Grove, Milton Keynes, MK7 — £150,000 • 2 bed • 1 bath • 472 ft²
2 bedroom terraced house for sale in Duchess Grove, Wavendon Gate, MILTON KEYNES, MK7 — £145,000 • 2 bed • 1 bath • 571 ft²
2 bedroom end of terrace house for sale in Havelock Avenue, Brooklands, MILTON KEYNES, MK10 — £167,500 • 2 bed • 1 bath
2 bedroom terraced house for sale in Millbank Place, Kents Hill, Milton Keynes, MK7 — £147,000 • 2 bed • 1 bath • 506 ft²










































































