Affordable two-bed semi with large garden and refurbishment potential, chain free.
Chain free sale, ideal first-time buy or investor
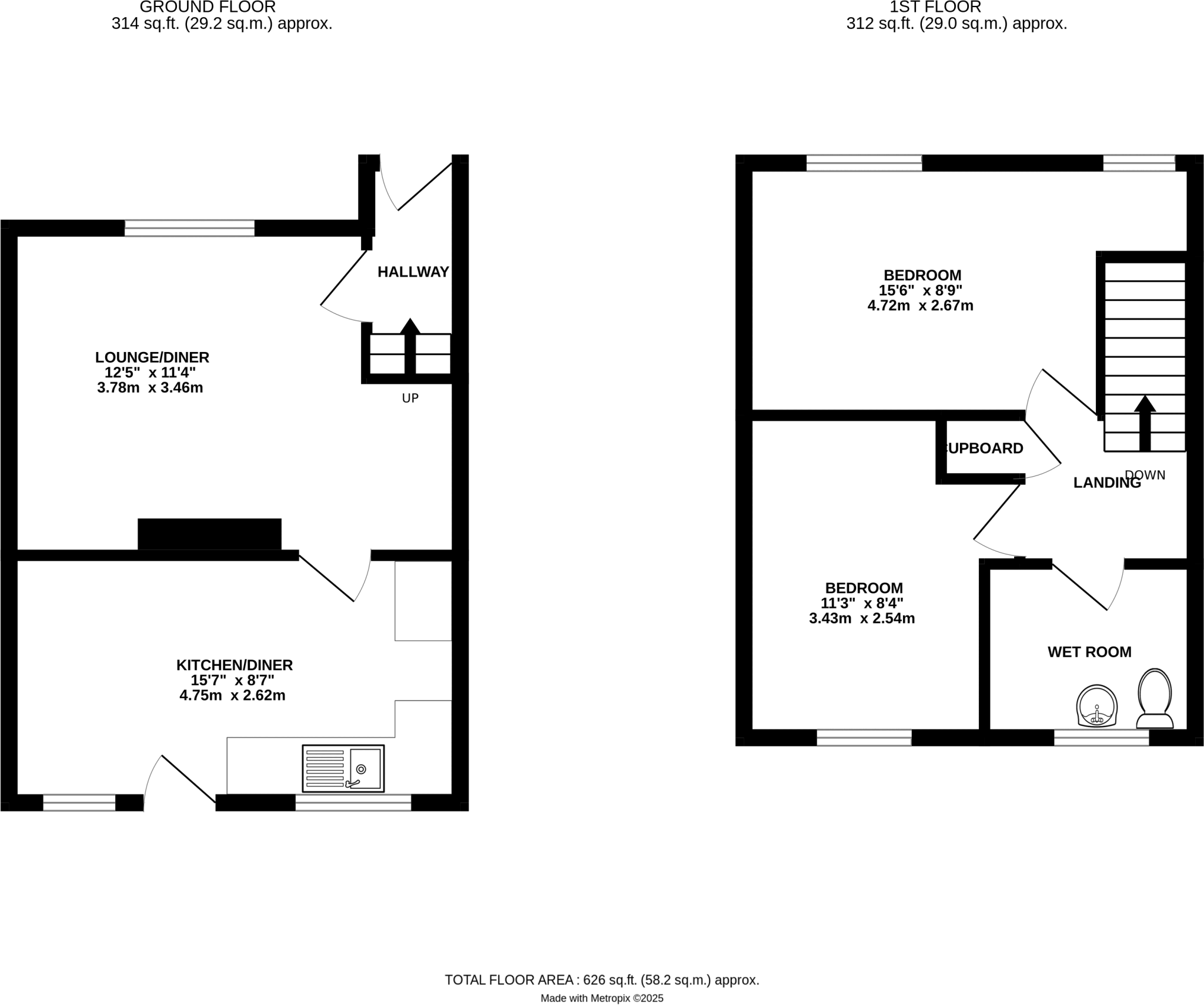
Two double bedrooms and 12'5 lounge
15'7 kitchen/diner; requires modernization and repairs
Wet room; single bathroom only
uPVC double glazing and gas central heating
Garage needs work; driveway parking available
Rear garden backs onto farmland; very large plot
Potential damp and wall/floor damage indicated
This two-bedroom semi-detached house in North Tawton is presented chain free and suits a first-time buyer or investor seeking an affordable entry into the local market. The layout includes a 12'5 lounge, generous 15'7 kitchen/diner and two double bedrooms, arranged over two storeys with sensible room proportions.
Practical features include uPVC double glazing, gas central heating with a condensing boiler, driveway parking and an attached single garage. The rear garden backs onto farmland, offering a quieter outlook and a very large plot with scope for landscaping or extension (subject to consents).
The property requires internal updating: the kitchen is dated and partly damaged, and images suggest potential damp and wall/floor defects in places. The garage also needs repair. These issues reduce the immediate move-in readiness but present clear renovation potential for a buyer willing to modernise and add value.
Overall this is an affordable, freehold home in a small town setting with low crime, good mobile signal and nearby amenities and primary schools. It will particularly suit buyers prepared to undertake a modest refurbishment to create a comfortable, long-term home or rental property.
2 bedroom semi-detached house for sale in Strawberry Fields, North Tawton, Devon, EX20 — £230,000 • 2 bed • 2 bath • 723 ft²
3 bedroom detached house for sale in Barkers Way, North Tawton, Devon, EX20 — £325,000 • 3 bed • 2 bath • 1224 ft²
2 bedroom semi-detached house for sale in Cornfield Way, North Tawton, EX20 — £235,000 • 2 bed • 1 bath • 624 ft²
3 bedroom terraced house for sale in High Street, North Tawton, Devon, EX20 — £230,000 • 3 bed • 1 bath • 1108 ft²
1 bedroom terraced house for sale in High Street, North Tawton, Devon, EX20 — £149,000 • 1 bed • 1 bath • 490 ft²
2 bedroom house for sale in Strawberry Fields, North Tawton, Devon, EX20 — £225,000 • 2 bed • 2 bath • 728 ft²






































