Modern, low-maintenance one-bedroom flat with garage and long lease in desirable Harpenden..
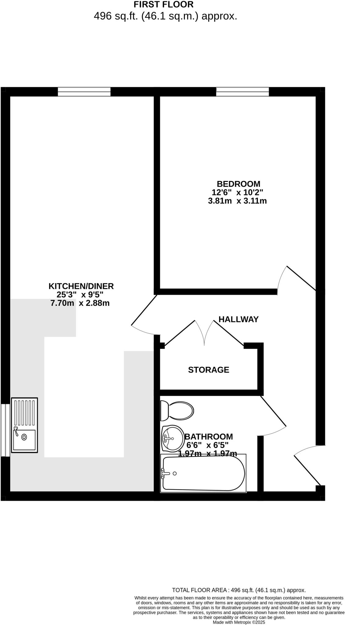
- One-bedroom first-floor apartment with open-plan living and kitchen
- Modern kitchen and bathroom, presented in good order
- Garage parking included — uncommon for apartments
- Long lease: 118 years remaining
- Service charge approximately £1,770 per year
- Ground rent £250 per year
- Compact size ~496 sq ft; modest storage and living space
- No upper chain; fast broadband and excellent transport links
This well-presented one-bedroom first-floor apartment in St Margaret’s Court offers low-maintenance living ideal for first-time buyers or downsizers. The open-plan living and kitchen space feels bright and modern, complemented by a double bedroom and a contemporary bathroom. The development is well kept and benefits from excellent transport links and nearby amenities in Harpenden.
Practical positives include a garage parking space (rare for apartments), no upper chain and a long lease of 118 years. Heating is provided by a mains-gas boiler with underfloor heating, and the property lies in a very affluent, low-crime area with fast broadband and strong local schools.
Buyers should note this is a leasehold flat with an average service charge of £1,770 and a ground rent of £250. The apartment is average in overall size at about 496 sq ft, so storage and entertaining space are modest. The property is presented in modern order, but purchasers wanting larger living areas would need to consider alternative layouts or larger flats.
Overall, this apartment is a straightforward, low-fuss purchase for someone seeking a well-located starter home or a rental investment in a desirable Hertfordshire town. The main trade-offs are typical leasehold costs and the compact footprint; otherwise it offers good value and immediate occupancy potential.
2 bedroom flat for sale in Cross Way, Harpenden, Hertfordshire, AL5 — £475,000 • 2 bed • 2 bath • 830 ft²
2 bedroom apartment for sale in Station Road, Harpenden, Hertfordshire, AL5 — £325,000 • 2 bed • 1 bath • 532 ft²
1 bedroom apartment for sale in St Margarets Court, Cross Way, Harpenden, Hertfordshire, AL5 — £315,000 • 1 bed • 1 bath • 548 ft²
1 bedroom apartment for sale in Alban Court, Burleigh Road, St. Albans, AL1 — £290,000 • 1 bed • 1 bath • 481 ft²
1 bedroom flat for sale in Milton Road, Harpenden, AL5 — £299,950 • 1 bed • 1 bath • 518 ft²
2 bedroom apartment for sale in Sun Lane, Harpenden, Hertfordshire, AL5 — £550,000 • 2 bed • 1 bath • 643 ft²






























