Versatile freehold warehouse with offices — strong conversion and investment potential.
Large freehold warehouse and offices — approx. 7,050 sq ft total
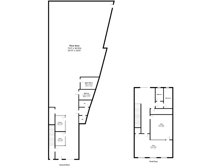
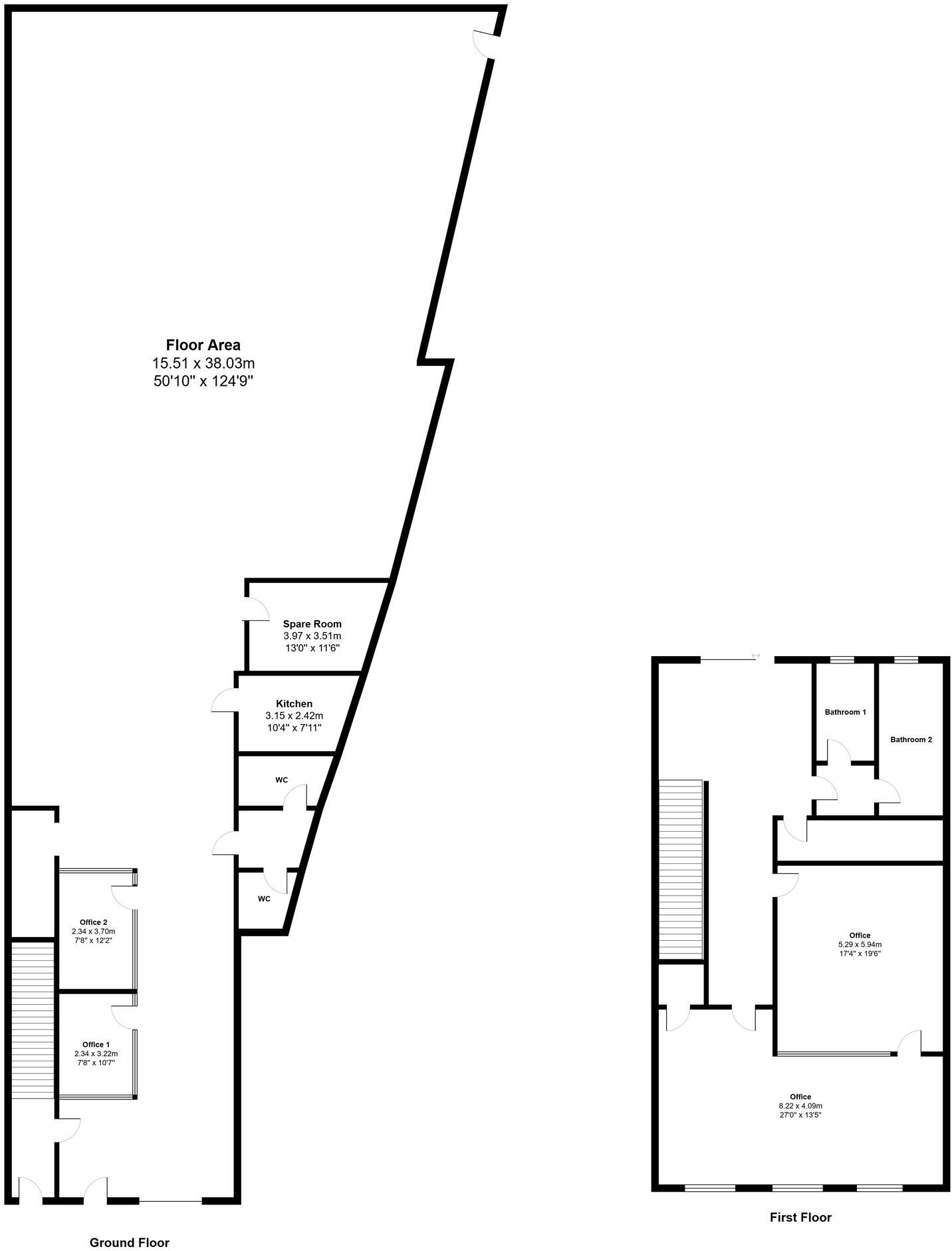
A substantial freehold warehouse and office building totalling approximately 7,050 sq ft in Small Heath, offered with flexible commercial use and clear conversion potential (STPP). The ground floor provides a large open-plan warehouse with two electric shutters, concrete floor and front glass-partitioned offices; the first floor offers independent access, two carpeted offices, kitchen, shower/WC and direct flat roof access. Existing fire sprinkler, CCTV cabling and fire alarm are present but will require reactivation.
This property suits investors or owner-occupiers seeking an adaptable base for storage, distribution, light industrial or a split-use commercial scheme. The upper floor could be converted into residential units subject to planning — creating rental income or resale value. Practical on-street parking and a drop-kerb for deliveries support trade use, while excellent transport links and proximity to Coventry Road give easy regional access.
Buyers should factor in remedial and upgrade costs: the building shows signs of dereliction and will need repairs and modernisation, gas supply is currently disconnected, and the flat roof and older fabric (solid brick walls likely uninsulated) may require attention. The property sits in a very deprived area with above-average crime statistics, which affects lettability and tenant mix for higher-value residential conversion.
Priced at £675,000 freehold for a large footprint in a busy Birmingham location, this is a clear opportunity for a hands-on investor or business that can manage refurbishment and planning. Prospective purchasers must verify measurements and services independently and allow for refurbishment and compliance costs.
Warehouse for sale in Cyril Road, Small Heath, Birmingham, B10 — £675,000 • 1 bed • 1 bath • 6386 ft²
Light industrial facility for sale in 120 Highgate Street, Birmingham, B12 0XR, B12 — £1,400,000 • 1 bed • 1 bath • 15633 ft²
Warehouse for sale in 8 Great Hampton Street, Birmingham, B18 6AQ, B18 — POA • 1 bed • 1 bath • 3600 ft²
Warehouse for sale in 2335 Coventry Road, Sheldon, Birmingham, B26 3PG, B26 — POA • 1 bed • 1 bath • 1219 ft²
Light industrial facility for sale in 79-107 Barford Street, Digbeth, Birmingham, B5 6AH, B5 — £2,000,000 • 1 bed • 1 bath • 22000 ft²
Light industrial facility for sale in Unit 10 & 10A Credenda Road, West Bromwich, B70 — POA • 1 bed • 1 bath • 5147 ft²


















































































