Income-focused Victorian block near Cardiff University, turnkey for investors.
- Fully let freehold block of six flats, total annual income £64,500
- Reported gross yield c.8.9% at asking price £725,000
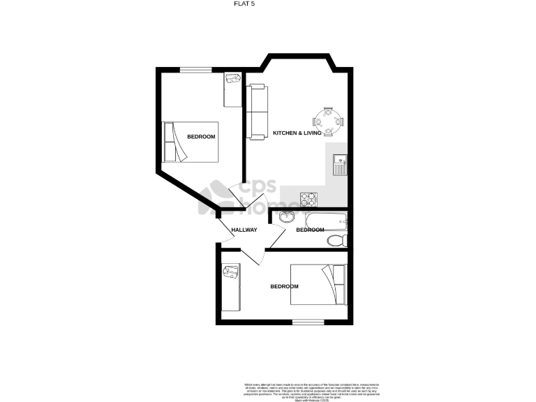
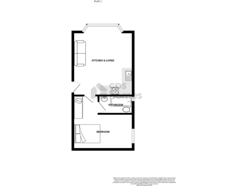
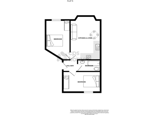
- Mix of 3 x 1-bed and 3 x 2-bed, nine bedrooms total
- Prime Richmond Road location, close to university and city centre
- Victorian solid-brick build; high ceilings and bay windows
- No confirmed wall insulation; retrofit likely needed to improve efficiency
- EPCs C–E across flats; one flat rated E (may need upgrades)
- Area classed very deprived; tenant profile skewed to students
A ready-made, fully let freehold block on Richmond Road, offering reliable income and strong gross yield for investors. Six self-contained flats (3 x one-bed, 3 x two-bed) produce a combined annual income of £64,500 — a reported 8.9% gross return — with consistent occupancy driven by proximity to Cardiff University and the city centre.
The building is a Victorian semi-detached terrace of solid brick construction (c.1900–1929) with high ceilings and bay windows that attract students and young professionals. Individual flat EPCs range from C to E (one flat EPC E); one flat’s lower rating may limit immediate energy-efficiency credentials and could require improvement works to boost appeal and reduce running costs.
Practical considerations: the walls are assumed to be solid brick with no installed insulation, so there is potential for retrofit improvement but also associated costs. The local area shows high rental demand but is classed as very deprived, which can affect long-term capital growth dynamics and tenant profiles. Overall this property suits investors seeking an income-producing, hands-on asset in a high-demand student and young-professional market.
11 bedroom block of apartments for sale in Richmond Road, Cardiff, CF24 — £850,000 • 11 bed • 6 bath • 3500 ft²
8 bedroom semi-detached house for sale in The Walk, Roath, CF24 — £900,000 • 8 bed • 8 bath
18 bedroom semi-detached house for sale in Newport Road, Roath, Cardiff, CF24 — £2,150,000 • 18 bed • 17 bath
6 bedroom block of apartments for sale in Penylan Road, Cardiff, , CF24 — £750,000 • 6 bed • 1 bath • 356 ft²
6 bedroom block of apartments for sale in Connaught Road, Cardiff, CF24 — £485,000 • 6 bed • 6 bath
4 bedroom block of apartments for sale in Habershon Street, Splott, CF24 — £475,000 • 4 bed • 4 bath • 1249 ft²






















































































































