Spacious four-bedroom family home with private courtyard and period charm.
Georgian end-terrace on a prominent corner in a conservation area
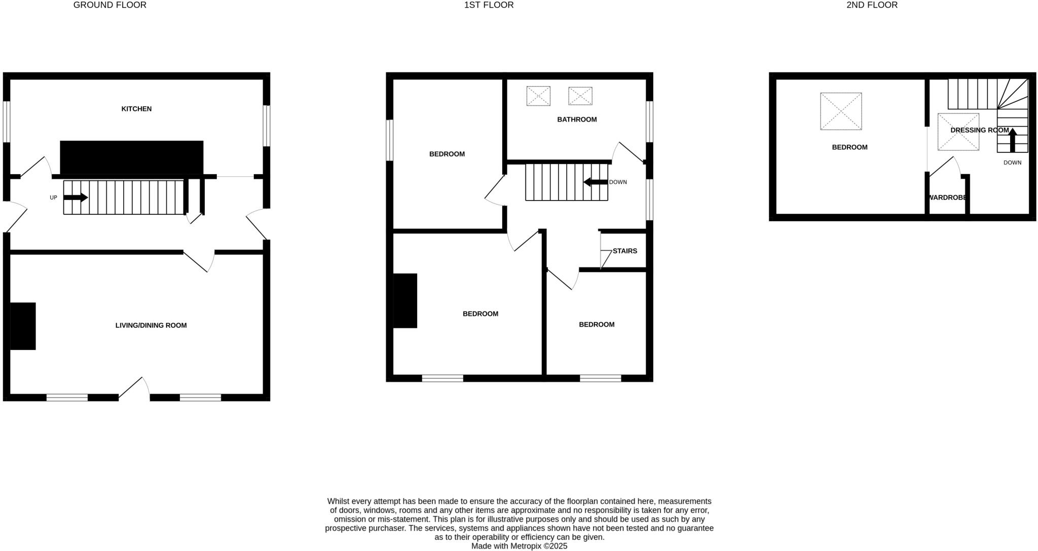
Set on a prominent corner in historic Portland Square, this Georgian end-terrace combines period detail with practical family living. The house offers four bedrooms across three levels, a full-width living/dining room with shuttered windows, a galley kitchen and a private enclosed courtyard — all close to Workington town centre and local schools.
The property has genuine character: granite walls, high ceilings in parts, stained wooden floors and a loft conversion that provides a dressing room and fourth bedroom. Modern upgrades include double glazing and mains gas central heating (boiler and radiators present but untested). The modest plot and efficient layout make the house easy to manage for a growing family.
Buyers should note material considerations clearly and early. The stone walls are assumed uninsulated which contributes to a below-average energy performance; improvement work could reduce running costs. There is just one main bathroom for four bedrooms, and parking is on-street via resident permit. The wider area has high recorded crime rates and is classified as deprived — factors to weigh when considering long-term suitability.
Overall, this home will suit families seeking character, space and a town-centre location with scope to improve energy efficiency and modern convenience. Viewing is recommended to appreciate the layout, light and corner aspect while assessing any planned upgrades.
3 bedroom terraced house for sale in 16 Nook Street, Workington, Cumbria, CA14 — £195,000 • 3 bed • 1 bath • 1141 ft²
4 bedroom terraced house for sale in Elizabeth Street, Workington, CA14 — £170,000 • 4 bed • 2 bath • 1986 ft²
3 bedroom terraced house for sale in Vulcans Lane, Workington, Cumbria, CA14 — £155,000 • 3 bed • 1 bath
2 bedroom terraced house for sale in Dove Lane, Workington, CA14 — £115,000 • 2 bed • 1 bath • 666 ft²
2 bedroom end of terrace house for sale in Belvedere Street, Workington, CA14 — £145,000 • 2 bed • 1 bath • 1066 ft²
3 bedroom terraced house for sale in Vulcans Lane, Workington, CA14 — £155,000 • 3 bed • 1 bath • 1055 ft²






















































































