Comfortable over-60s home with large gardens and private parking.
Three double bedrooms, including en suite to main bedroom
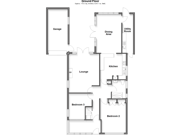
This roomy three-bedroom detached bungalow sits on a large plot in Woodingdean and is well suited to older buyers seeking single-storey living. The property’s highlight is a generous open-plan kitchen/dining area that flows to a bright conservatory-style dining space, plus a separate lounge, utility room and an en suite to the main bedroom. A garage and driveway provide parking for up to three cars while mature front and rear gardens offer privacy and outdoor space.
For buyers aged 60 and over there is an option to purchase via a Homewise Lifetime Lease. The example Lifetime Lease guide price shown is £363,500 (around a 33% average saving against the full market price of £550,000), with the actual price to be personalised according to age and circumstances; purchasers may buy up to a 50% share to safeguard value. The ownership is freehold, and the bungalow is presented as a retirement-suitable home.
Practical points to note: the house dates from the 1950–1966 era and has cavity walls and gas central heating via boiler and radiators. Double glazing is present but install dates are not confirmed. The local classification data records a higher deprivation level and ‘hampered neighbourhoods’ descriptor; crime levels are average. Prospective buyers must verify measurements, tenure details, and any planning or building-regulation history themselves.
This property will appeal to older buyers looking to downsize without sacrificing space, gardeners who value mature outdoor areas, and anyone wanting a single-floor layout close to local amenities and bus links into Brighton. Some updating or refurbishment may be desired depending on personal tastes and verification of services.
3 bedroom detached bungalow for sale in Crescent Drive South, Woodingdean, Brighton, East Sussex, BN2 — £363,000 • 3 bed • 1 bath • 892 ft²
4 bedroom chalet for sale in Downs Valley Road, Woodingdean, Brighton, East Sussex, BN2 — £330,500 • 4 bed • 2 bath • 1077 ft²
4 bedroom semi-detached bungalow for sale in The Ridgway, Woodingdean, Brighton, East Sussex, BN2 — £327,000 • 4 bed • 2 bath • 1551 ft²
3 bedroom detached bungalow for sale in McWilliam Road, Woodingdean, Brighton, East Sussex, BN2 — £327,000 • 3 bed • 1 bath • 575 ft²
3 bedroom detached bungalow for sale in Vernon Avenue, Woodingdean, Brighton, East Sussex, BN2 — £363,500 • 3 bed • 2 bath • 1197 ft²
3 bedroom semi-detached bungalow for sale in Rustington Road, Hollingbury, Brighton, East Sussex, BN1 — £297,000 • 3 bed • 1 bath • 1228 ft²


































































