Five beds, double garage and open-plan living near excellent schools.
Five bedrooms and three-storey living, approx. 2,153 sq ft
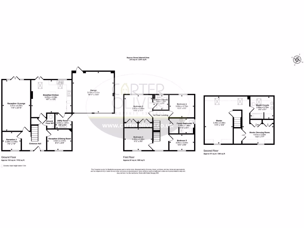
Set on a quiet edge of Lutterworth, this substantial five-bedroom detached property combines contemporary fittings with generous family space. The heart of the home is a large open-plan kitchen and living area with a central island, integrated appliances and French doors that open to patio and garden — ideal for everyday family use and entertaining. A double garage and wide driveway provide practical off-street parking for several vehicles.
Accommodation is arranged over three storeys and includes a principal suite with en-suite, a dedicated home office, three further reception rooms and a useful utility. Multiple modern bathrooms with walk-in showers and double basins reduce morning congestion for busy households. The layout and size (c. 2,153 sq ft) deliver flexible space for children, home working and occasional guests.
Practical considerations are straightforward: the home is freehold, warmed by a gas boiler and radiators, and has an EPC rating of B. The property sits in a very affluent, small-town setting with good local schools and fast broadband, but recorded local crime levels are above average and council tax is expensive — factors worth factoring into household costs. The front garden is modest and the rear garden size cannot be fully confirmed from images.
This is a modern, well-proportioned family home ready to occupy with minimal alteration. There is still scope to personalise finishes or reconfigure some rooms to suit particular lifestyles, but major structural work is not indicated from the provided information.
5 bedroom detached house for sale in Maxwell Way, Lutterworth, LE17 — £500,000 • 5 bed • 2 bath • 1454 ft²
4 bedroom detached house for sale in Buttercup Close, Lutterworth, LE17 — £525,000 • 4 bed • 2 bath • 2110 ft²
5 bedroom detached house for sale in The Furrow, Market Harborough, LE16 — £550,000 • 5 bed • 3 bath • 2000 ft²
5 bedroom detached house for sale in Wakes Close, Dunton Bassett, LE17 — £550,000 • 5 bed • 3 bath • 2142 ft²
5 bedroom detached house for sale in Bitteswell Road, Lutterworth, LE17 — £665,000 • 5 bed • 2 bath • 2168 ft²
4 bedroom detached house for sale in Burrough Way, Lutterworth, Leicestershire, LE17 — £500,000 • 4 bed • 3 bath • 1678 ft²














































































































