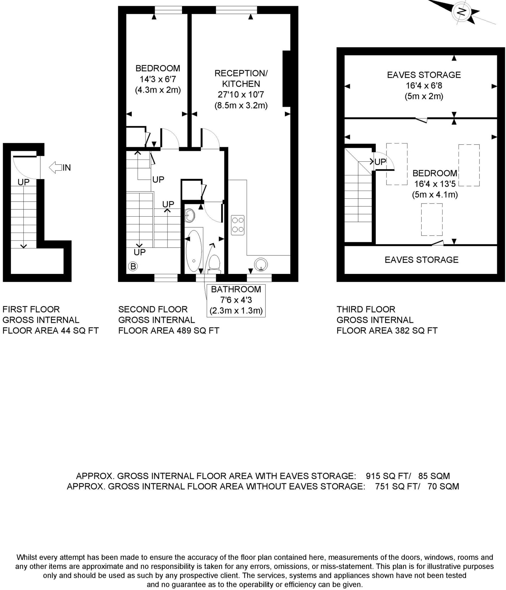
**Standout Features:**
- Split-level top-floor flat in a period conversion
- Two spacious double bedrooms
- Approx. 750 sq ft of internal space with character features
- Long leasehold: 999 years remaining
- Excellent transport links via Cricklewood Thameslink
- Close to local amenities and Gladstone Park
**Potential Concerns:**
- Single glazing may lead to lower energy efficiency
- Higher crime rate in the local area
- Average service charge of £1800
Nestled on the desirable Lichfield Road, this charming split-level flat combines modern living with period character. Encompassing 750 sq ft, it boasts two generous double bedrooms and a bright reception space that perfectly blends comfort and style. Ideal for professionals, sharers, or first-time buyers, the property offers both privacy and a vibrant community atmosphere. With the convenience of Cricklewood Thameslink nearby, you have swift access to central London, while local shops and the greenery of Gladstone Park enhance your lifestyle.
Despite its numerous positives, potential buyers should note the single glazing, which might affect energy efficiency, and the surrounding area's higher crime statistics. With a long lease and solid investment potential, this property offers a unique opportunity to own a piece of North West London living. Early viewings are highly recommended—properties like this don’t stay on the market long!
2 bedroom apartment for sale in Lichfield Road, Cricklewood, London, NW2 — £350,000 • 2 bed • 1 bath • 750 ft²
2 bedroom flat for sale in Claremont Road, Cricklewood, London, NW2 — £425,000 • 2 bed • 1 bath • 854 ft²
2 bedroom flat for sale in Ashford Road, Cricklewood, NW2 — £475,000 • 2 bed • 2 bath • 895 ft²
2 bedroom flat for sale in Larch Road, London, NW2 — £545,000 • 2 bed • 1 bath • 621 ft²
2 bedroom flat for sale in Cricklewood Lane, London, NW2 2QE, NW2 — £425,000 • 2 bed • 2 bath • 862 ft²
2 bedroom flat for sale in Pine Road, London, NW2 — £425,000 • 2 bed • 1 bath • 737 ft²






















































