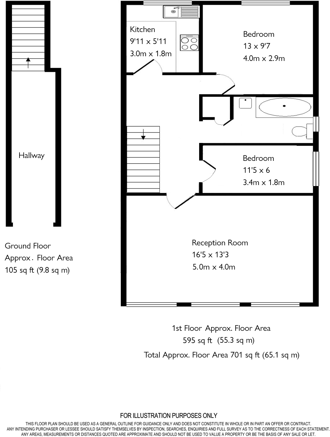
**Standout Features:**
- Spacious first-floor two-bedroom maisonette
- Quiet, character-filled residential area
- Incredible potential for modernization
- 125 years remaining on the lease, chain-free sale
- Small courtyard front garden and additional loft space
- Close proximity to local shops, schools, and recreational facilities
**Concise Summary:**
Discover the charm and potential of this spacious first-floor, two-bedroom maisonette, perfect for first-time buyers or investors looking to add value. Boasting a character feel with modern double glazing and gas central heating, this property offers bright front aspect living spaces, a separate kitchen, and two generously sized bedrooms.
While the kitchen and bathroom require renovation, the investment opportunity is significant with a low maintenance charge and no ground rent. Enjoy the benefits of a small courtyard front garden and additional loft space, ideal for future expansion. Located near a bustling parade of shops, top-rated schools like Grovelands Primary, and leisure amenities, this property is a short distance from the River Thames. With 125 years left on the lease and a price that reflects its need for modernization, don’t miss out on this chain-free gem. Convenient access to transport links enhances its appeal, making this maisonette a worthy investment for those looking for a family-friendly or rental-ready home.
2 bedroom maisonette for sale in Terrace Road, Walton-On-Thames. , KT12 — £285,000 • 2 bed • 1 bath • 701 ft²
1 bedroom maisonette for sale in Paxton Close , Walton On Thames , KT12 — £236,500 • 1 bed • 1 bath • 463 ft²
1 bedroom ground floor maisonette for sale in Kilsha Road, Walton-On-Thames, KT12 — £200,000 • 1 bed • 1 bath • 470 ft²
2 bedroom maisonette for sale in Garden Road, Walton-On-Thames, KT12 — £375,000 • 2 bed • 1 bath • 806 ft²
1 bedroom apartment for sale in Vicarage Fields, Walton-On-Thames, KT12 — £190,000 • 1 bed • 1 bath • 482 ft²
2 bedroom maisonette for sale in Palmer Crescent, Ottershaw, KT16 — £275,000 • 2 bed • 1 bath • 626 ft²


























