Character-filled semi near Moseley Bog — ideal for first-time buyers or DIY improvement..
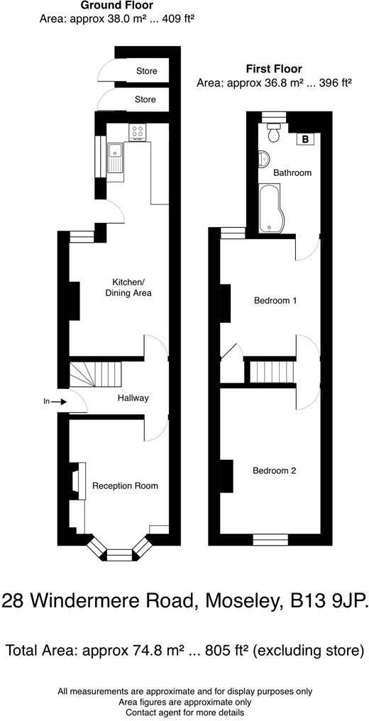
- Two-bedroom Victorian semi with bay-fronted lounge and high ceilings
- Open-plan dining room and kitchen, side access to rear garden
- Working log burner and period features; character throughout
- Bathroom accessed through Bedroom Two (privacy/layout constraint)
- Underpinning carried out pre-1980; historic paperwork available
- Solid brick walls likely without modern cavity insulation
- Small plot with gravel seating, lawn and outbuildings
- High local crime and area deprivation; verify local factors
A Victorian semi with character, this two-bedroom home sits close to Moseley Bog and local amenities. The bay-fronted lounge, high ceilings and working log burner give period charm while an open-plan dining/kitchen creates a practical everyday space. The rear garden and small outbuildings add useful outdoor space for entertaining or storage.
Important practical facts for buyers: underpinning work was carried out before August 1980 and some historic inspection paperwork is available. The first-floor bathroom is accessed via Bedroom Two, which affects privacy and bedroom layout. There is no confirmed modern wall insulation (solid brick as built) and the vendor has not verified planning or building regulation approvals for past works.
This property suits a first-time buyer or couple seeking period character near green space, or a renovation project for someone happy to update. Broadband and mobile signal are strong, mains gas central heating is fitted, and council tax is low (Band B). High local crime and wider area deprivation are notable local factors to consider when viewing.
Prospective buyers should review the historic underpinning records, commission a survey, and check planning/building approvals before committing. Viewing the video tour is advised to appreciate layout and room proportions prior to a visit.
2 bedroom semi-detached house for sale in Yardley Wood Road, Yardley Wood Road, B14 — £215,000 • 2 bed • 1 bath • 808 ft²
2 bedroom terraced house for sale in Windermere Road, Moseley, Birmingham, B13 — £270,000 • 2 bed • 1 bath • 711 ft²
2 bedroom terraced house for sale in Moor Green Lane, Moseley, B13 — £210,000 • 2 bed • 1 bath • 743 ft²
4 bedroom semi-detached house for sale in Woodstock Road, Moseley, B13 — £475,000 • 4 bed • 2 bath • 2110 ft²
3 bedroom semi-detached house for sale in Hannon Road, Kings Heath, Birmingham, B14 — £425,000 • 3 bed • 2 bath • 1364 ft²
2 bedroom semi-detached house for sale in Elmfield Avenue, Birmingham, B24 — £230,000 • 2 bed • 1 bath • 575 ft²






































































































