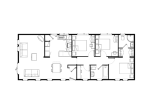
**Standout Features:**
- Luxurious, fully furnished new park home
- Stylish interior with a large lounge featuring vaulted ceilings
- Modern kitchen/diner with skylight and contemporary design
- Two double bedrooms with en-suite shower and additional bathroom
- Study room and huge plot size
- Parking on plot; pets considered; age restriction of 45+
- Located in a safe, tranquil, and affluent area surrounded by nature
**Summary:**
Discover an exceptional opportunity with this stylish new park home nestled within a well-maintained residential park, ideal for those aged 45 and over. This stunning home boasts a spacious lounge with vaulted ceilings, creating an inviting atmosphere, complemented by a contemporary kitchen/diner bathed in natural light from the skylight. Two generous double bedrooms, including a dedicated en-suite, along with an additional bathroom, provide ample space for comfort and privacy.
With a huge plot offering a peaceful retreat in a secure environment, this property caters to those seeking a tranquil lifestyle while being part of a vibrant community. The charming surroundings offer average mobile connectivity and very slow broadband speeds, appealing to those looking to disconnect and relax without the noise of the city.
Consider the potential of this well-designed park home—perfect for personal enjoyment or as an investment opportunity. The age restriction and pet considerations make this an exclusive haven. Don't miss out—properties like this, in such a coveted location, are rare finds and won’t last long!
2 bedroom park home for sale in Open Day Saturday 28th June, Organford Manor Country Park, BH16 — £319,950 • 2 bed • 2 bath
2 bedroom park home for sale in Organford Manor Country Park, Organgford, Poole, Dorset, BH16 — £279,950 • 2 bed • 2 bath
2 bedroom park home for sale in Organford Manor Country Park Homes, Poole, BH16 — £284,950 • 2 bed • 2 bath • 900 ft²
2 bedroom park home for sale in Poole, Dorset, BH16 — £229,000 • 2 bed • 2 bath • 840 ft²
2 bedroom park home for sale in Stour Park, Bournemouth, Dorset, BH10 — £150,000 • 2 bed • 1 bath • 624 ft²
2 bedroom park home for sale in Stour Park, New Road, Bournemouth, Dorset, BH10 — £255,000 • 2 bed • 2 bath • 792 ft²














































































































