Edge-of-village plot with garage, gardens and far-reaching country views.
No onward chain, vacant possession on completion
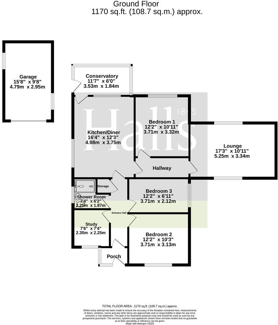
Set on a generous plot on the edge of Ellerdine, this three-bedroom, single-storey home offers peaceful rural outlooks and flexible living space. The bungalow has a traditional layout with a large lounge, separate dining room, conservatory, study and three bedrooms — a sensible plan for downsizers or buyers wanting ground-floor living.
The property requires modernisation throughout: the kitchen and principal living areas show 1980s/1990s fittings and dated decor, and the home would benefit from updating to improve energy efficiency and finish. Heating is by LPG boiler to radiators and glazing is double but of unknown age, which should be considered when budgeting for works. There is one shower room only.
Outside, the wide gated driveway, detached single garage and extensive enclosed gardens are major assets. The grounds provide potential to extend the house or, subject to planning permission, to create a separate building plot (developer/owner statement). parked vehicles and storage are easily accommodated.
No chain and a hamlet location make for straightforward completion and quiet country living, while Newport, Telford and Shrewsbury are within easy driving distance. Council Tax sits above average (Band E), and broadband is average for the area — important practical points to weigh when considering this home’s renovation and living costs.
3 bedroom detached bungalow for sale in Newport Road, Edgmond, Newport, TF10 — £460,000 • 3 bed • 3 bath • 1384 ft²
3 bedroom bungalow for sale in Greenhill Bank, Ellesmere, SY12 — £700,000 • 3 bed • 2 bath • 1421 ft²
4 bedroom detached bungalow for sale in Childs Ercall, TF9 — £265,000 • 4 bed • 1 bath • 1320 ft²
3 bedroom detached bungalow for sale in Silver Hill, High Ercall, TF6 — £450,000 • 3 bed • 2 bath • 1206 ft²
4 bedroom detached bungalow for sale in Rosehill Road, Stoke Heath, Market Drayton, TF9 2JU, TF9 — £550,000 • 4 bed • 3 bath • 2010 ft²
3 bedroom detached bungalow for sale in Church Road, Lee Brockhurst, Shrewsbury, SY4 — £450,000 • 3 bed • 1 bath • 1389 ft²






































































































