A new four-bedroom detached home with flexible living and energy-efficient features, ideal for growing families..
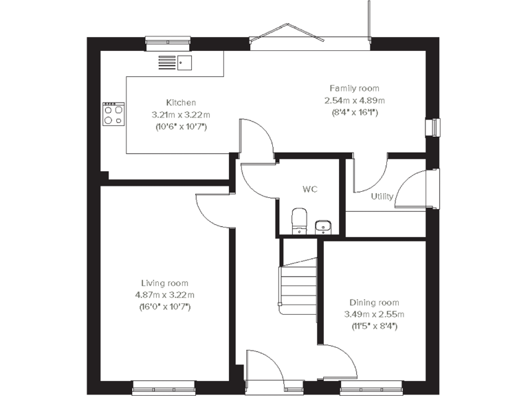
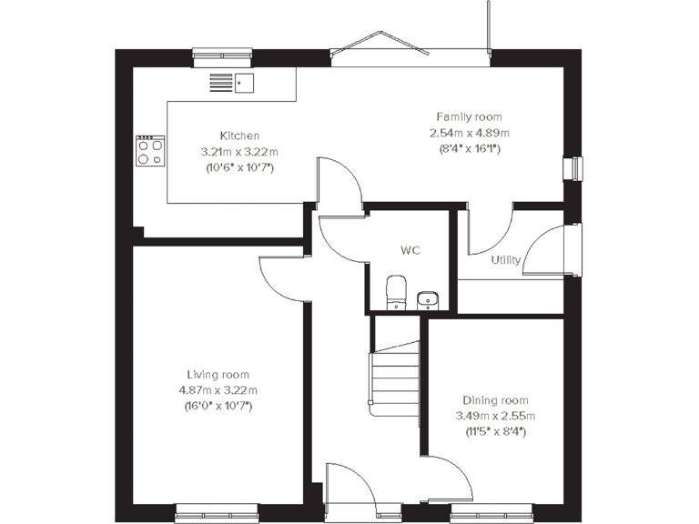
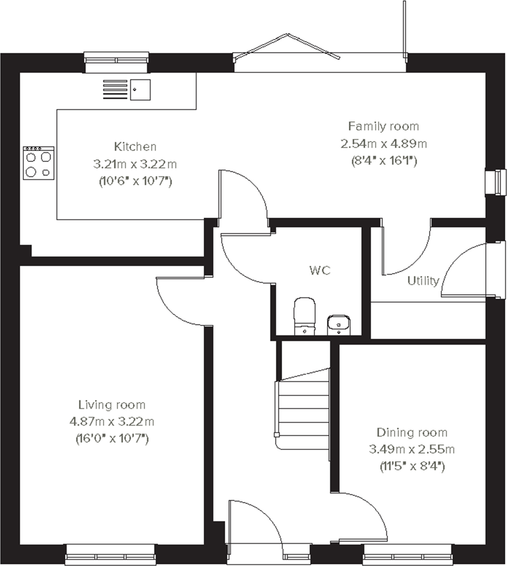
- Open-plan kitchen/family room with bi-fold doors to garden
- Separate living room, dining room and upstairs study
- En-suite to bedroom 1; downstairs WC and utility present
- Energy efficient with solar panels and modern fittings
- Single garage plus driveway parking
- Overall internal size is small (approx. 502 sq ft)
- Decent plot but compact room layouts; check storage
- Local secondary schools are mixed in performance
This modern four-bedroom detached new build on Desborough Road offers flexible family living across a compact footprint. The open-plan kitchen/family room with bi-fold doors creates an inviting inside‑out entertaining space, while a separate living room and dining room give quieter options for everyday life. An upstairs study supports hybrid working, and the attached single garage plus driveway add convenient parking.
The principal bedroom benefits from an en-suite and there is a downstairs WC and utility for practical daily routines. The home is described as energy efficient and shows modern fixtures throughout, including a bright kitchen with built-in appliances and high ceilings in parts of the ground floor. The plot is described as decent for the property size and the house includes solar panels.
Location suits families seeking local primary schools rated Good; secondary provision in the immediate area is mixed, so buyers should review options if secondary school performance is a priority. The property sits in a small‑town fringe setting with fast broadband and average crime levels.
Buyers should note the overall internal size is small (approximately 502 sq ft listed) so expect compact rooms despite a four-bedroom layout. The home is new build and freehold, which reduces immediate maintenance needs, but the compact internal square footage may limit furniture layouts and storage compared with larger family homes.
4 bedroom detached house for sale in Desborough Road,
Rothwell,
NN146JQ, NN14 — £435,995 • 4 bed • 1 bath • 503 ft²
4 bedroom detached house for sale in Desborough Road,
Rothwell,
NN146JQ, NN14 — £430,000 • 4 bed • 1 bath • 2036 ft²
4 bedroom detached house for sale in Desborough Road,
Rothwell,
NN146JQ, NN14 — £490,000 • 4 bed • 1 bath • 1136 ft²
4 bedroom detached house for sale in Desborough Road,
Rothwell,
NN146JQ, NN14 — £475,000 • 4 bed • 1 bath • 1143 ft²
4 bedroom detached house for sale in Desborough Road,
Rothwell,
NN146JQ, NN14 — £460,000 • 4 bed • 1 bath • 2157 ft²
4 bedroom detached house for sale in Desborough Road, Rothwell, Kettering, NN14 — £430,000 • 4 bed • 2 bath • 1013 ft²






























































































































