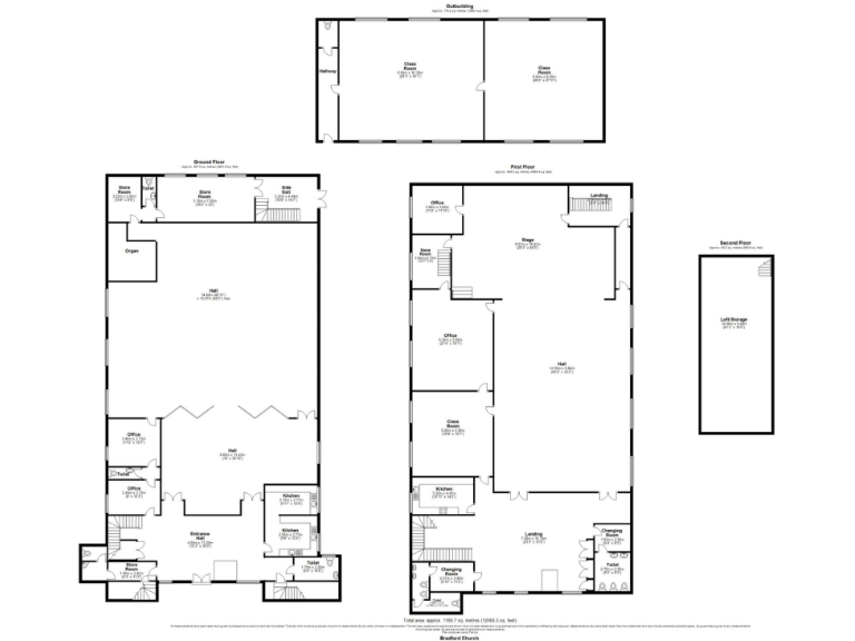
### Key Features:
- **Size**: Approximately 12,500 sq. ft.
- **Property Type**: Existing Place of Worship with flexible F1 Use.
- **Structure**: Two floors with mezzanine and annex, featuring a large main hall, offices, kitchen, and W.C facilities.
- **Parking**: Extensive parking space available at the rear and side.
- **Location**: Prominent position in town center, surrounded by amenities and residential areas.
- **Condition**: Requires restoration; potential for redevelopment and alternative uses.
- **Auction**: Offered for sale at Savills auction on 22nd July 2025.
**Summary Description:**
Discover a substantial and historic property with immense potential, set in the heart of Bradford. This former place of worship, encompassing approximately 12,500 square feet, offers a unique opportunity for religious, educational, or community-focused occupiers. The building features grand, high ceilings and expansive rooms, accompanied by generous parking facilities that enhance its accessibility.
While the property is ripe for redevelopment and adaptive reuse, it may require restoration to unlock its full potential. Its prominent location places it within walking distance to many local amenities like supermarkets and restaurants, plus excellent public transport links to Bradford Town Centre. Whether you're an investor seeking a transformative project or a community group looking for a significant space, this property is both an exclusive opportunity and a canvas for future possibilities. Don’t miss your chance—this unique listing will be auctioned on July 22, 2025!
Land for sale in Ukrainian Autocephalic Orthodox Church, Stony Lane, Bradford, West Yorkshire, BD2 2HN, BD2 — £250,000 • 1 bed • 1 bath • 3878 ft²
Commercial property for sale in Cornerstone Methodist Church, Bradford, BD7 — £700,000 • 1 bed • 1 bath • 12493 ft²
Land for sale in Former West End Methodist Church, West End, Queensbury, Bradford, BD13 — £425,000 • 1 bed • 1 bath • 5554 ft²
Leisure facility for sale in Christ the Saviour Church, Swinnow Lane, Leeds, LS13 4NQ, LS13 — £290,000 • 1 bed • 1 bath • 4080 ft²
Land for sale in The United Reformed Church In South Leeds, Dewsbury Road, Leeds, LS11 — £375,000 • 1 bed • 1 bath • 7922 ft²
Commercial development for sale in Queensbury Baptist Church, Chapel Lane, Queensbury, Bradford, Yorkshire, BD13 2PZ, BD13 — £250,000 • 1 bed • 1 bath • 3083 ft²






































