Compact, chain-free home close to Queens Road shops and Victoria Park.
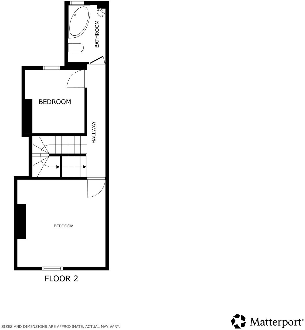
- Chain-free two-bedroom mid-terrace with freehold tenure
- Split-level lounge-dining room creating a light through-space
- Modern fitted kitchen with integrated appliances included
- Boarded loft room provides storage or small home office
- Southerly rear garden, patio and three storage outbuildings
- Compact overall size; internal space is small to average
- EPC rating D; consider energy improvements and insulation
- Solid brick walls likely uninsulated; check retrofit costs
A well-presented two-bedroom mid-terrace in Clarendon Park offered chain-free and ready to move into. The split-level lounge-dining room and modern fitted kitchen with appliances create a practical, light-filled ground floor ideal for everyday living. The boarded loft room adds useful flexibility for storage, a home office or hobby space.
Outside, a southerly-facing rear garden with patio and three storage outbuildings gives a private outdoor spot for relaxion and small-scale gardening. The property benefits from gas central heating, double glazing and a compact, efficient layout suited to first-time buyers seeking a manageable home close to local amenities.
Positioned close to Queens Road, Victoria Park and the University of Leicester, this house suits buyers who prioritise convenience and local cafés, shops and transport links. The modest footprint and small plot make it straightforward to maintain, though internal space is compact compared with larger family homes. EPC rating D; a buyer should consider energy upgrades and potential for rear extension or loft work, subject to consents.
2 bedroom terraced house for sale in Lytton Road, Clarendon Park, Leicester, LE2 — £200,000 • 2 bed • 1 bath • 969 ft²
3 bedroom terraced house for sale in Leopold Road, Clarendon Park, Leicester, LE2 — £240,000 • 3 bed • 1 bath • 797 ft²
2 bedroom terraced house for sale in Wordsworth Road, Knighton Fields, Leicester, LE2 — £210,000 • 2 bed • 1 bath • 753 ft²
2 bedroom terraced house for sale in Avenue Road Extension, Leicester, LE2 — £190,000 • 2 bed • 1 bath • 717 ft²
2 bedroom terraced house for sale in Oxford Road, Clarendon Park, Leics, LE2 — £230,000 • 2 bed • 1 bath • 785 ft²
2 bedroom terraced house for sale in Henton Road, Leicester, LE3 — £164,950 • 2 bed • 1 bath • 743 ft²






































































