Generous period flat moments from St Margarets station, chain-free with a new long lease.
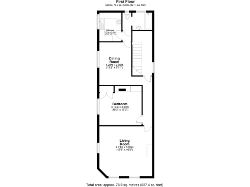
Unusually large one-bedroom apartment — approx. 827 sq ft
A rare, unusually large one-bedroom apartment in the heart of St Margarets Village, arranged over the first floor of a characterful Victorian building. At about 827 sq ft the layout feels far more generous than a typical one-bed, with a double-aspect reception, separate dining room, fitted kitchen and a recently fitted bathroom.
This flat will appeal to first-time buyers or commuter professionals seeking space and convenience. It is moments from St Margarets station with direct services to London Waterloo, and the village amenities — shops, cafés and services — are right on the doorstep. The property is vacant, offered chain-free and benefits from a new 250-year lease, giving long-term security for buyers.
There are some practical considerations: the EPC rating is D and the building’s solid brick walls are assumed uninsulated, so energy performance could improve with works. The double glazing installation date is unknown. Council Tax band D applies. Overall this is a spacious, well-located period apartment with strong transport links and clear potential to personalise and upgrade energy efficiency over time.
2 bedroom flat for sale in Crown Road, St Margarets, Twickenham, TW1 — £499,950 • 2 bed • 1 bath • 773 ft²
1 bedroom apartment for sale in Rosslyn Road, Twickenham, TW1 — £550,000 • 1 bed • 1 bath • 696 ft²
1 bedroom flat for sale in St Margaret's Road, Twickenham, TW1 — £300,000 • 1 bed • 1 bath • 418 ft²
1 bedroom flat for sale in St. Margarets Road, St Margarets, TW1 — £375,000 • 1 bed • 1 bath • 474 ft²
2 bedroom apartment for sale in St Margarets Road, St Margarets Village, TW1 — £350,000 • 2 bed • 1 bath • 669 ft²
1 bedroom apartment for sale in The Barons, St Margarets Village, TW1 — £525,000 • 1 bed • 1 bath • 624 ft²


































