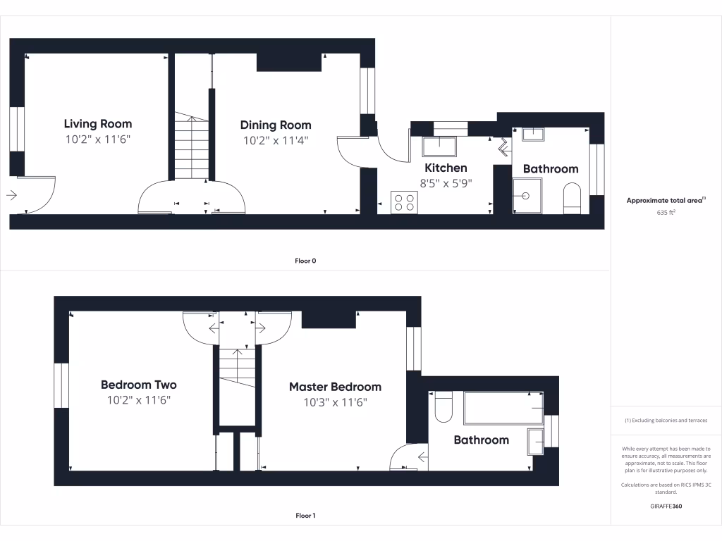
**Standout Features:**
- **Two Double Bedrooms**: Spacious and comfortable living for small families or couples.
- **Two Bathrooms**: Includes a master en-suite for added convenience.
- **Two Living Areas**: Modern living space with plenty of natural light.
- **No Onward Chain**: Quick and simple move-in process.
- **Off-Street Parking**: Permits available for residents and guests.
- **Low Maintenance Garden**: Perfect for summer entertaining.
- **Excellent Transport Links**: Walking distance to Reading town center and the mainline railway station.
This charming Victorian terraced house, located in an inner-city mixed community, is ideal for first-time buyers or commuters seeking convenience and comfort. With two sizable double bedrooms and two bathrooms, including a larger master en-suite, this home provides practical living over a neat and efficient layout. The inviting living and dining areas are designed for modern living, complemented by a contemporary kitchen and shower room on the ground floor.
The property's low maintenance rear garden offers an excellent space for outdoor relaxation and entertainment during the warmer months. While the vibrant urban setting comes with potential for high crime rates, the proximity to a range of amenities—from shops to fitness centers—ensures a lively lifestyle just steps away. This property is competitively priced at £350,000 and is chain-free, providing an exciting opportunity for those looking to settle in a welcoming community quickly. Don’t miss out on this ready-to-move-in gem.
2 bedroom terraced house for sale in Waldeck Street, Reading, Berkshire, RG1 — £290,000 • 2 bed • 1 bath • 748 ft²
2 bedroom terraced house for sale in Wolseley Street, Reading, Berkshire, RG1 — £325,000 • 2 bed • 2 bath • 634 ft²
2 bedroom terraced house for sale in Shaftesbury Road, Reading, Berkshire, RG30 — £290,000 • 2 bed • 1 bath • 757 ft²
2 bedroom terraced house for sale in Catherine Street, Reading, Berkshire, RG30 — £325,000 • 2 bed • 1 bath • 736 ft²
2 bedroom terraced house for sale in Great Knolly Street, Reading, RG1 — £300,000 • 2 bed • 1 bath • 934 ft²
2 bedroom terraced house for sale in Granby Gardens, Reading, Berkshire, RG1 — £300,000 • 2 bed • 1 bath • 792 ft²


































