**Key Features:**
- **Property Type:** Detached house
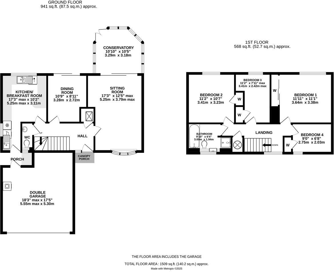
- **Size:** 1509 sq ft
- **Bedrooms:** 4 (two suitable for office use)
- **Bathrooms:** 1 well-appointed bathroom
- **Outside Space:** Large garden with multiple patios and a double garage
- **Education:** Close to excellent schools
- **Location:** Quiet residential close in Letchworth Garden City, near green spaces
- **Connectivity:** Quick access to town center and mainline railway
- **Condition:** Double-glazed windows and mains gas heating; requires minor updates
This modern detached family home offers an inviting atmosphere within a peaceful residential close in the desirable Lordship area of Letchworth Garden City. Spacious and well-presented, the property features four bedrooms, including versatile spaces that can double as home offices. The property boasts two reception rooms and a bright conservatory, perfect for family gatherings or entertaining guests.
The stunning rear garden is a true highlight, featuring landscaped areas, multiple paved patios, and two pergolas—an ideal retreat for outdoor living. With a double garage and driveway providing ample off-street parking, convenience is at your fingertips. Families will benefit from being within proximity to highly-rated schools, parks, and excellent transport links, with rail services to London and Cambridge just a short distance away.
While the house is generally in good condition, it offers a fantastic opportunity for minor renovations to suit personal tastes, making it a perfect choice for buyers looking to create their dream home in a vibrant community. Don't miss out on this exceptional family living opportunity.
4 bedroom detached house for sale in Howard Gate, Letchworth Garden City, SG6 — £685,000 • 4 bed • 2 bath • 1701 ft²
4 bedroom detached house for sale in Parker Close, Letchworth Garden City, SG6 — £700,000 • 4 bed • 2 bath • 1348 ft²
3 bedroom semi-detached house for sale in Baldock Road, Letchworth Garden City, SG6 — £550,000 • 3 bed • 1 bath • 1201 ft²
4 bedroom detached house for sale in Berkeley, Letchworth Garden City, SG6 — £785,000 • 4 bed • 2 bath • 1693 ft²
5 bedroom detached house for sale in Farthing Drive, Letchworth Garden City, SG6 — £780,000 • 5 bed • 2 bath • 2085 ft²
3 bedroom detached house for sale in Milne Close, Letchworth Garden City, SG6 — £500,000 • 3 bed • 1 bath • 966 ft²


























































































