Compact three-bedroom house with garage, gardens and low running costs.
Chain free with long 999-year lease from 1926
Nominal ground rent £2.30 per year
Partly renovated: new doors, double glazing, replastered and recarpeted
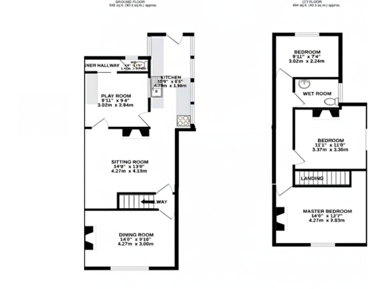
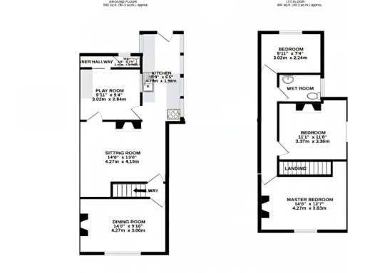
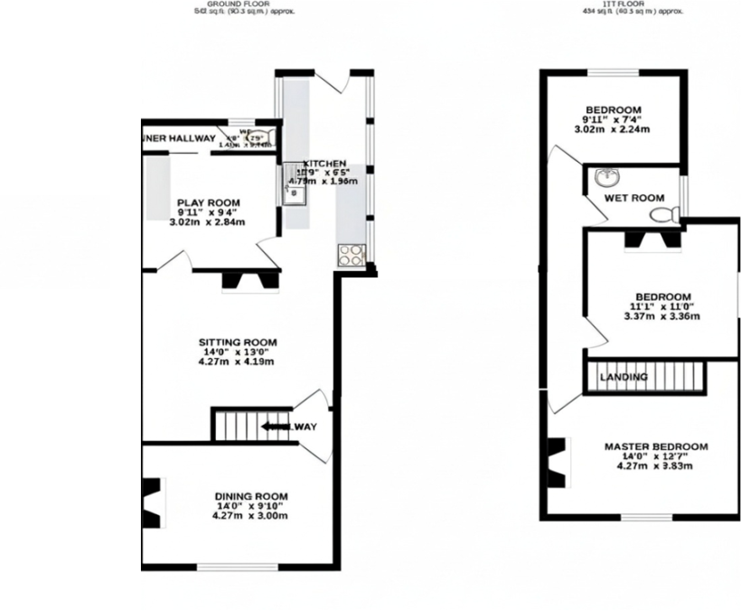
Flexible 2–3 reception rooms; fitted kitchen with good storage
Downstairs WC and first-floor shower room
Generous front and rear gardens plus large rear garage
Small overall size (~793 sq ft)
Local area: high crime and high deprivation — consider security and location
This three-bedroom semi-detached house on Knowsley Road offers an affordable entry into St Helens living, positioned within easy walking distance of schools, shops and everyday amenities. The property is offered chain free and benefits from a long lease (999 years from 26 May 1926) with a nominal ground rent of £2.30 per year, plus a low Council Tax Band B.
Internally the house has been partly renovated: new internal doors and double-glazed windows have been fitted, areas replastered, redecorated and newly carpeted. The flexible layout provides two or three reception rooms to suit living, dining or home working, while a fitted kitchen offers good storage and worktop space. There is a ground-floor WC and a first-floor shower room for practical family use.
Outside there are generous front and rear gardens and a large garage to the rear, useful for parking or storage. At about 793 sq ft the home is compact, aimed at first-time buyers or small families seeking an affordable, walkable location. Buyers should note the wider area has higher crime and significant deprivation indicators, so prospective purchasers may want to satisfy themselves on local conditions and security arrangements.
The property is partly modernised and largely move-in ready, but it remains a small-period home from the 1930s era and may require further updating to suit individual tastes. Viewing is recommended to assess the finish and potential to adapt rooms for your needs.
3 bedroom semi-detached house for sale in Princes Way, St Helens, Merseyside, WA11 — £185,000 • 3 bed • 1 bath • 1066 ft²
3 bedroom semi-detached house for sale in Meadow Avenue, Clock Face, Saint Helens, Merseyside, WA9 — £140,000 • 3 bed • 1 bath • 982 ft²
3 bedroom semi-detached house for sale in Knowsley Road, St. Helens, WA10 — £155,000 • 3 bed • 2 bath • 976 ft²
3 bedroom semi-detached house for sale in Prescot Road, St. Helens, Merseyside, WA10 — £250,000 • 3 bed • 2 bath • 1213 ft²
3 bedroom link detached house for sale in Campion Close, Saint Helens, Merseyside, WA11 — £190,000 • 3 bed • 1 bath • 1196 ft²
3 bedroom semi-detached house for sale in Ennerdale Avenue, Saint Helens, Merseyside, WA11 — £170,000 • 3 bed • 1 bath • 895 ft²














































