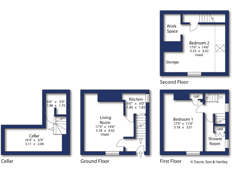
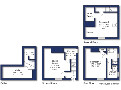
Characterful two-bed house with cellar and small gated garden, ideal for first-time buyers.
End-terrace Victorian stone construction with character features
This deceptively spacious two-bedroom end-terrace combines period character with ready-to-live-in presentation. Stone-built Victorian features, exposed brickwork and a stone floor give the living space character while double glazing and a modern shower room add contemporary convenience.
Accommodation is arranged over multiple floors with a useful cellar offering light, power and washing-machine plumbing — ready for storage or further development (subject to consent). The property sits on a small plot with a gated, low-maintenance front yard and narrow side access to the modest rear garden.
Practical points: the house is freehold, on mains gas with boiler and radiators, and falls in Council Tax Band A. On-street parking only and the building dates from before 1900; the external stone walls are likely uninsulated and may benefit from targeted energy improvements. Overall this home will suit first-time buyers seeking character and location, or investors after a straightforward rental property with development upside.
2 bedroom terraced house for sale in Stonefield Terrace, Churwell, Leeds, LS27 — £165,000 • 2 bed • 1 bath • 768 ft²
2 bedroom terraced house for sale in Gillroyd Mount, Morley, Leeds, West Yorkshire, LS27 — £169,000 • 2 bed • 1 bath • 592 ft²
2 bedroom end of terrace house for sale in Jubilee Terrace, Morley, Leeds, LS27 — £150,000 • 2 bed • 1 bath • 635 ft²
2 bedroom end of terrace house for sale in Howden clough Road, Morley, Leeds, LS27 — £199,950 • 2 bed • 2 bath • 786 ft²
3 bedroom end of terrace house for sale in Woodnook Terrace, Stanningley, PUDSEY, LS28 — £210,000 • 3 bed • 1 bath • 557 ft²
2 bedroom terraced house for sale in White Street, Woodlesford, Leeds, LS26 — £169,000 • 2 bed • 1 bath • 688 ft²


































































































