Chain‑free ground-floor flat near The Lexicon — ideal first home or buy-to-let..
- Chain free ground-floor apartment with communal garden views
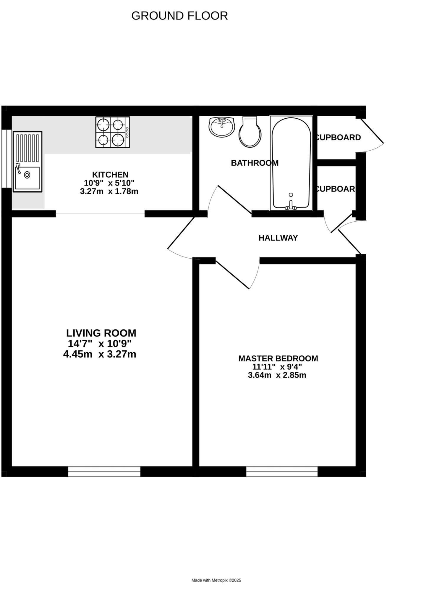
- One double bedroom and 14ft living room, 409 sq ft total
- Residents off-street parking included
- Modern fitted kitchen with built-in appliances
- Electric storage heating; buyers should verify heating performance
- Lease approx. 87 years remaining; consider lease extension costs
- Service charge ~£1,488pa and ground rent £150pa
- Local recorded crime level is higher than average
A ground-floor, one-bedroom apartment offered chain free and ready for immediate purchase. The flat sits at the end of a quiet cul‑de‑sac with an open aspect over well-kept communal grounds and an off‑street residents’ parking space. Less than a mile from The Lexicon, it puts shops, leisure and public transport within easy walking distance.
Interior highlights include a bright modern kitchen with built-in appliances, a 14ft living room and a double bedroom overlooking the garden. The compact 409 sq ft layout keeps everything on one level, making the home straightforward to live in or let. Double glazing and relatively recent construction (1991–95) contribute to low maintenance.
Important facts to note: the lease has approximately 87 years remaining, the annual service charge is about £1,488 and ground rent is £150. Heating is via electric storage heaters, and buyers should check appliance and heating operation themselves. The local recorded crime level is high compared with national averages, which may affect some buyers’ preferences.
This apartment will suit a first-time buyer looking for a low-maintenance starter home, or an investor seeking a conveniently located let close to Bracknell town centre. It’s an economical city-base with immediate availability, but purchasers should budget for service charges, remaining lease considerations and potentially upgrading heating or fixtures over time.
1 bedroom apartment for sale in Aragon Court, Bracknell, Berkshire, RG12 — £175,000 • 1 bed • 1 bath • 404 ft²
1 bedroom apartment for sale in Blu Bracknell, Wokingham Road, Bracknell, RG42 — £190,000 • 1 bed • 1 bath • 443 ft²
1 bedroom apartment for sale in Perry Way, Bracknell, Berkshire, RG12 — £160,000 • 1 bed • 1 bath • 502 ft²
1 bedroom apartment for sale in Simmonds Close, Bracknell, Berkshire, RG42 — £220,000 • 1 bed • 1 bath • 469 ft²
1 bedroom apartment for sale in Mount Lane, Bracknell, Berkshire, RG12 — £125,000 • 1 bed • 1 bath • 344 ft²
1 bedroom apartment for sale in Wayland Close, Bracknell, RG12 — £155,000 • 1 bed • 1 bath • 388 ft²






































