Rare large family house with huge renovation potential near schools and transport.
- Extremely large family home, about 2,083 sq ft
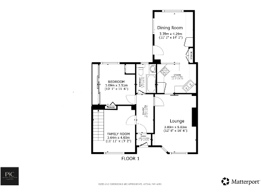
- Three bedrooms, ground-floor bedroom and two upstairs
- Large lounge, kitchen with skylight and three public rooms
- Garage with conservatory extension adaptable to many uses
- Mature, quiet residential setting; same family since 1962
- Property needs renovation throughout; cosmetic and modernisation work
- Located in a very deprived area; council tax above average
- Fast broadband but average mobile signal; no flood risk
A rarely available, generously proportioned semi‑detached family home in a mature, quiet Bathgate crescent. Loved by one family since 1962, the property offers solid bones and spacious rooms ready for a sympathetic cosmetic overhaul. The house is extremely large at around 2,083 sq ft, giving plenty of scope for modern living layouts.
The ground floor features a large lounge, a kitchen lit by a skylight and a ground‑floor bedroom, while two further bedrooms are found upstairs. Three public rooms provide flexible living — dining, play or home‑working spaces — and a bathroom plus separate W.C. help a busy household function comfortably. A side conservatory extension attached to the garage creates a useful additional room that could be a home office, games room or bar.
Outside, a mature garden complements the interior and provides room for family activities. Practical points include a garage, fast broadband and no flood risk. Key negatives to note are the property’s need for renovation throughout, above‑average council tax, and its situation within a very deprived area — factors that affect running costs and resale profile. Mobile signal is average.
This home will suit buyers who value space and character and who are prepared to invest time and budget to modernise. With good local schools, amenities and commuter links into the central belt, the house presents a compelling canvas for a growing family or an owner‑occupier seeking substantial scope to add value.
3 bedroom detached house for sale in Galabraes Crescent, Bathgate, West Lothian, EH48 — £225,000 • 3 bed • 1 bath • 1302 ft²
3 bedroom semi-detached house for sale in Sutherland Crescent, Bathgate, West Lothian, EH48 — £160,000 • 3 bed • 1 bath • 861 ft²
2 bedroom flat for sale in Waverley Street, Bathgate, EH48 — £110,000 • 2 bed • 1 bath • 1356 ft²
4 bedroom detached house for sale in Marjoribanks Street, Bathgate, EH48 — £395,000 • 4 bed • 2 bath • 1221 ft²
3 bedroom end of terrace house for sale in Glenmavis Drive, Bathgate, EH48 — £150,000 • 3 bed • 1 bath • 1075 ft²
3 bedroom end of terrace house for sale in Bridgend Park, Bathgate, West Lothian, EH48 — £200,000 • 3 bed • 1 bath










































































































































