Freehold site with conversion and upward extension potential via PDR.
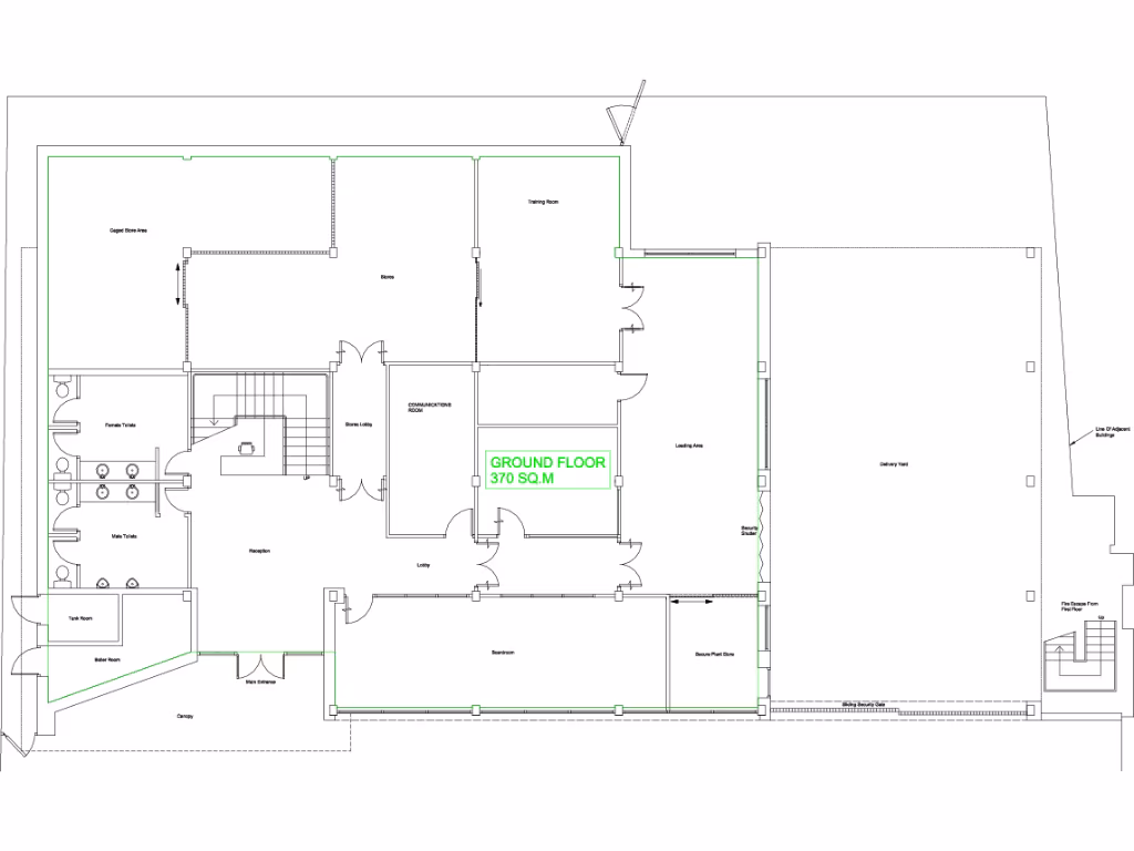
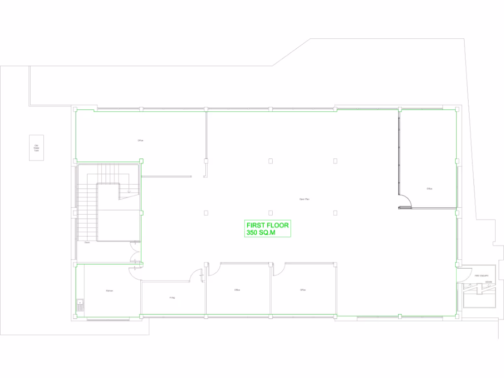
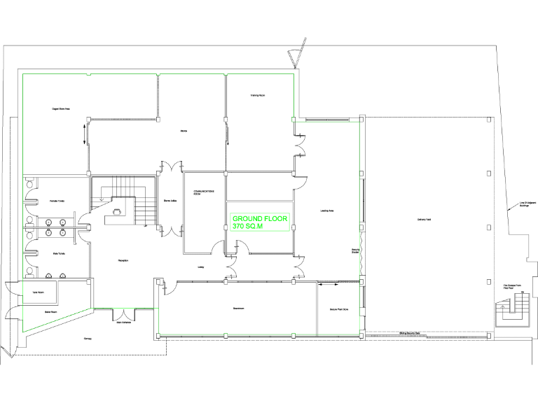
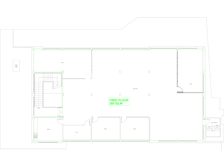
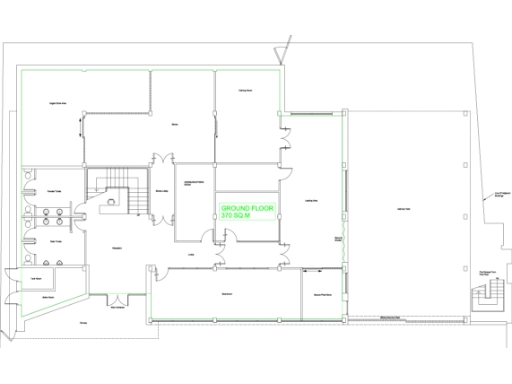
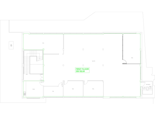
Approx 7,750 sqft (720 sqm) GIA over two storeys
A substantial freehold two‑storey office on a 0.22‑acre site in central West Norwood, offered with vacant possession at a guide price of £2,250,000. The existing Class E building extends to approximately 720 sqm (7,750 sqft) GIA, with generous 3.8m floor‑to‑ceiling heights, excellent natural light, air‑conditioning, raised floors and double glazing. Ground and first floors are arranged as high‑quality open plan and partitioned workspace, with covered undercroft parking and additional surface spaces.
The property is best suited to investors or developers seeking conversion potential: permitted development rights can allow residential conversion and an upward extension, and alternative Class E/F1/F2 uses (nursery, gym, medical, community or education) are feasible subject to necessary consents. On‑site parking, clear frontage, and a strong West Norwood location near transport and local amenities add practical value.
Buyers should note this is a 1960s flat‑roof building and, while externally in reasonable condition, it may require ongoing maintenance or upgrade if changing use. External amenity space is limited and planning approval is required for change of use or extension. VAT is not elected; the sale is freehold with vacant possession.
Warehouse for sale in Mixed-Use Parade For Sale, 81-89 Norwood High Street, West Norwood, West Norwood, SE27 9JS, SE27 — £2,000,000 • 1 bed • 1 bath • 7358 ft²
Warehouse for sale in The Works & Carlew House, 19 & 21 East Place, West Norwood, London, SE27 9JW, SE27 — £4,000,000 • 1 bed • 1 bath • 10379 ft²
Warehouse for sale in The Works, 19 East Place, West Norwood, London, SE27 9JW, SE27 — £1,400,000 • 1 bed • 1 bath • 3622 ft²
Warehouse for sale in Carlew House, 21 East Place, West Norwood, London, SE27 9JW, SE27 — £2,600,000 • 1 bed • 1 bath • 6757 ft²
Office for sale in Wilkinson House, Powys Close, Bexleyheath, Kent, DA7 — £700,000 • 1 bed • 1 bath • 5300 ft²
Office for sale in 180 Brighton Road, Coulsdon, Surrey, CR5 2NF, CR5 — £275,000 • 1 bed • 1 bath • 1264 ft²






























