**Standout Features:**
- Charming detached park home in a peaceful over 50's community
- Two double bedrooms, including an ensuite in the master
- Open-plan living area with modern kitchen and spacious lounge
- Low maintenance garden with scenic field views
- Off-street parking available
- EPC exempt, Council Tax Band A
- Chain-free sale, allowing for quick occupancy
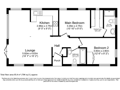
Experience comfortable living in this well-appointed two-bedroom detached park home, perfect for those seeking a tranquil retreat. Offering approximately 704 sq. ft. of stylish open-plan living, this property features a bright lounge with expansive windows, a contemporary kitchen complete with integrated appliances, and cozy bedrooms designed for easy furnishing. The master bedroom boasts a private ensuite, while guests will appreciate the additional bathroom with modern fixtures.
Step outside to enjoy a rear garden with low-maintenance landscaping and panoramic views of the surrounding fields—an ideal space for relaxation or entertaining guests. Situated within a secure, age-restricted community, this home not only promises peace but also affordability with very low council tax. While the ground rent is notably high, the lack of onward chain makes this an attractive opportunity for discerning buyers looking to downsize or find a serene lifestyle.
Located in the scenic village of North Kesteven, you’ll enjoy average connectivity alongside access to local amenities and well-rated primary schools. Don’t miss this chance to make it your own—properties in such prime locations don’t stay on the market for long!
2 bedroom park home for sale in Braemar Residential Park, Kirkby Green, Lincoln, LN4 — £95,000 • 2 bed • 1 bath • 377 ft²
1 bedroom lodge for sale in Braemar Residential Park, Kirkby Green, Lincoln, LN4 — £75,000 • 1 bed • 1 bath
2 bedroom park home for sale in Marina View, Dogdyke - Lincolnshire, LN4 — £125,000 • 2 bed • 2 bath • 800 ft²
1 bedroom park home for sale in Braemar Residential Park, Kirkby Green, Lincoln, Lincolnshire, LN4 — £60,000 • 1 bed • 1 bath • 579 ft²
2 bedroom park home for sale in Kirkstead Bridge Park, Martin Dales, Woodhall Spa, LN10 — £135,000 • 2 bed • 2 bath • 800 ft²
2 bedroom bungalow for sale in The Orchards Park, Ruskington, Sleaford, Lincolnshire, NG34 — £79,950 • 2 bed • 1 bath • 547 ft²














































