**Standout Features:**
- Charming link-detached thatched cottage
- Spacious south-facing garden backing onto fields
- Off-road parking for multiple vehicles
- Three double bedrooms with original character
- Located in a sought-after village with easy access to Exeter and Crediton
- Potential for extensions or reconfigurations (subject to permission)
- Central heating and well-maintained thatch roof
**Concerns:**
- Requires renovation and TLC
- Listed status may limit some renovation options
Nestled in the picturesque village of Newton St. Cyres, this delightful three-bedroom thatched cottage presents a rare opportunity for those looking to infuse a traditional home with personal touches. The property showcases an idyllic rural setting, with a generous south-facing garden offering tranquil views over adjacent fields—a perfect canvas for gardening enthusiasts or those seeking outdoor leisure space.
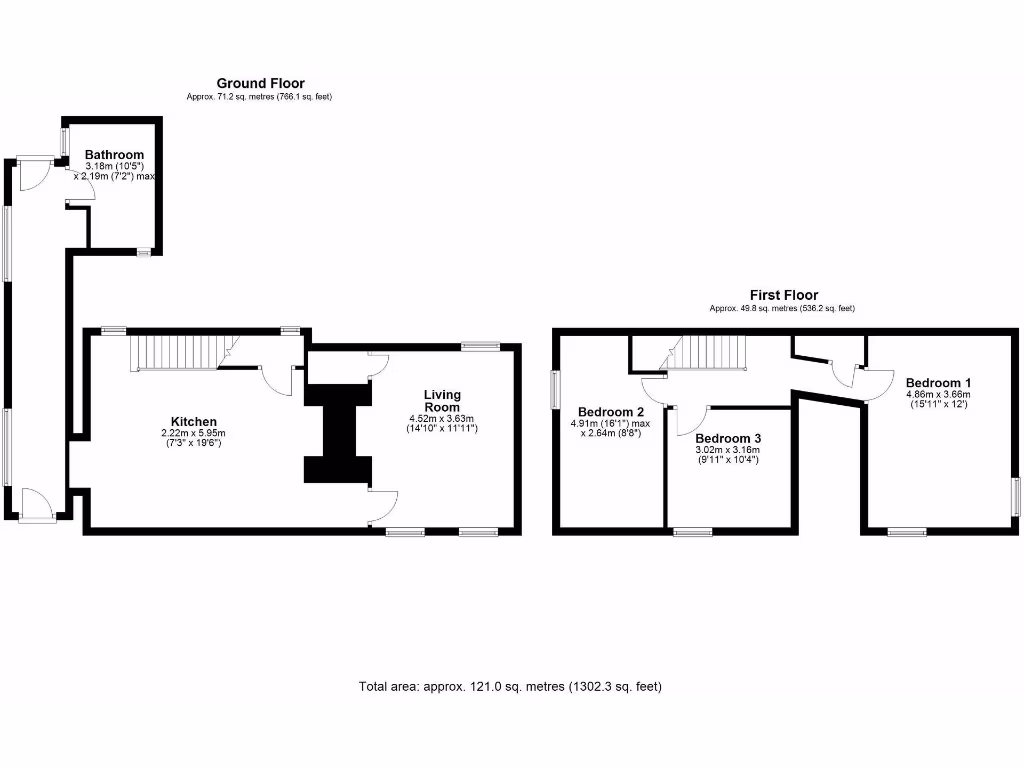
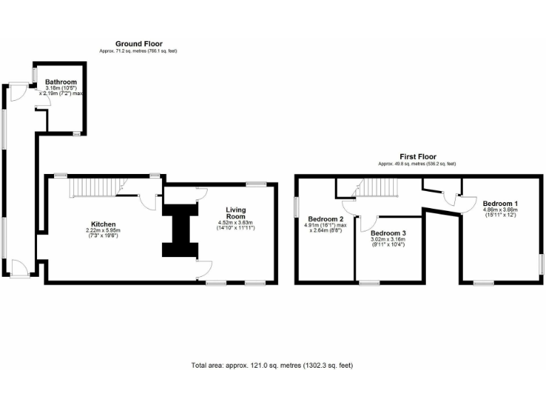
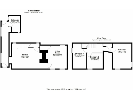
Inside, the cottage features a practical layout with a good-sized kitchen/dining room and a light-filled living room complete with an unused fireplace. Upstairs, three spacious double bedrooms reflect the home's vintage charm. While renovations are necessary to bring this cottage back to its former glory, the well-maintained thatch and oil-fired central heating provide a solid foundation.
Surrounded by the delightful amenities of Newton St. Cyres, including a modern primary school, scenic walks, and local dining options, this property is ideally suited for families and investors alike. With the opportunity to enhance the living space further (subject to permissions) and the peaceful environment this village offers, this unique listing won't be on the market for long. If you're envisioning a blend of countryside comfort with exciting potential, this cottage could be your dream come true.
3 bedroom detached house for sale in Newton St. Cyres, Exeter, EX5 — £550,000 • 3 bed • 2 bath • 1530 ft²
3 bedroom semi-detached house for sale in Newton St. Cyres, Exeter, EX5 — £335,000 • 3 bed • 2 bath • 861 ft²
4 bedroom cottage for sale in Pump Street, Newton St. Cyres, EX5 — £675,000 • 4 bed • 2 bath • 1784 ft²
3 bedroom cottage for sale in Morchard Bishop, Crediton, EX17 — £475,000 • 3 bed • 2 bath • 1464 ft²
3 bedroom terraced house for sale in Newton St. Cyres, Exeter, EX5 — £275,000 • 3 bed • 1 bath • 784 ft²
3 bedroom semi-detached house for sale in Cheriton Bishop, Exeter, EX6 — £425,000 • 3 bed • 1 bath • 1905 ft²






















































