**Standout Features:**
- Modern static caravan in a tranquil park setting
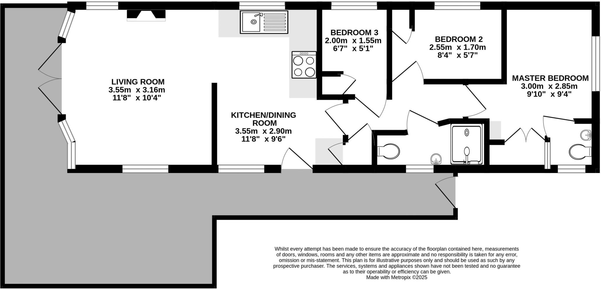
- Three spacious bedrooms with family shower room and ensuite wc
- Well-equipped kitchen with ample storage and dining area
- Inviting living room with feature fireplace and access to private decking
- Scenic views towards the lake from outdoor decking
- Comprehensive on-site amenities: shop, pools, mini-golf, and fishing lakes
- Low crime rates in a peaceful village environment
- Excellent mobile signal, but broadband speeds are slow
**Potential Concerns:**
- Leasehold with only 11 years remaining, which could restrict mortgage options
- Service charge is above average at £7,239.88
Discover your serene escape in the heart of the Cotswold Lakes with this modern, detached static caravan, boasting three generous bedrooms, a family bathroom, and an ensuite wc. The open-concept kitchen and dining area flow seamlessly into a cozy living room, complete with a feature fireplace and direct access to a generous deck. Enjoy stunning lake views while relaxing outdoors or entertaining guests.
Positioned in a welcoming community with excellent amenities—including leisure facilities, shops, and lush parkland—this property offers both comfort and convenience. However, it’s important to note the limited remaining lease term, which may impact financing options. With robust potential as a vacation retreat or rental investment, this charming home is an opportunity not to be missed, especially in such a tranquil setting. Act swiftly; homes like this are in high demand and won’t last long!
3 bedroom detached house for sale in Mallard Lake, Cotswold Hoburne, Cotswold Water Park, GL7 — £26,000 • 3 bed • 2 bath • 456 ft²
3 bedroom detached house for sale in Kingfisher Lake, Cotswold Hoburne, Cotswold Lakes, GL7 — £49,000 • 3 bed • 2 bath • 468 ft²
2 bedroom park home for sale in Mallard Lake, Cotswold Hoburne, Cotswold Lakes, GL7 — £50,000 • 2 bed • 2 bath • 388 ft²
2 bedroom detached house for sale in Mallard Lake, Cotswold Hoburne, Cotswold Water Park, GL7 — £40,000 • 2 bed • 2 bath • 520 ft²
3 bedroom detached house for sale in Willow View, Cotswold Hoburne, Cotswold Lakes, GL7 — £42,500 • 3 bed • 2 bath • 391 ft²
2 bedroom detached house for sale in Kingfisher Lake, Cotswold Hoburne, Cotswold Water Park, GL7 — £35,000 • 2 bed • 1 bath • 481 ft²














































