Spacious five-bedroom family home steps from station and Heath.
Five bedrooms across three main floors, approximately 1,802 sq ft
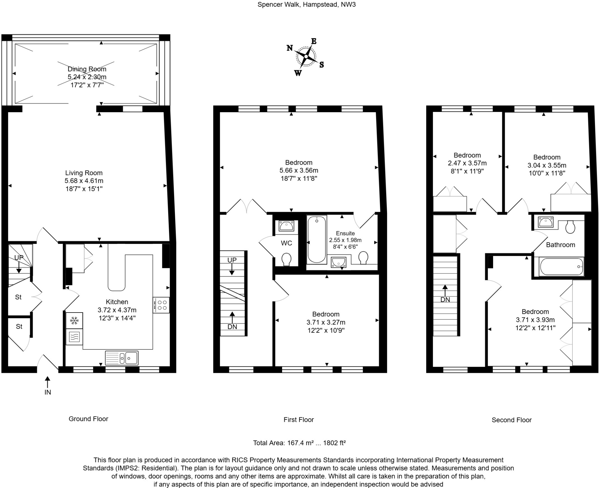
Set within a gated development in central Hampstead, this five-bedroom semi-detached home offers roomy, versatile accommodation across three floors. The ground floor reception opens to a conservatory, creating easy entertaining flow, while a separate fitted kitchen and breakfast area provide functional family space. The principal bedroom on the first floor benefits from an en-suite; three further upper-floor bedrooms and a family bathroom suit children, guests or home office use.
Practical conveniences include a private front patio garden, secure underground parking and on-site 24-hour porter with CCTV, enhancing day-to-day reassurance. The long lease (approx. 956 years) is a clear ownership positive. The property totals about 1,802 sq ft and sits very close to Hampstead Underground Station and the open spaces of Hampstead Heath.
Notable costs and considerations are factual: the property is leasehold, the service charge is approximately £6,862 per year (above average), and council tax is described as quite expensive. The house dates from the 1980s (1983–1990) and has double glazing and gas central heating; it presents as a contemporary-built town residence rather than a period conversion.
This home is best suited to families or professionals wanting immediate proximity to Hampstead’s amenities, schools and transport, while prioritising convenience, secure parking and low maintenance communal services. Buyers seeking a period property or minimal ongoing service charges should note those differences before viewing.
2 bedroom terraced house for sale in Upper Hampstead Walk, Hampstead Village, NW3 — £2,000,000 • 2 bed • 2 bath • 1300 ft²
2 bedroom terraced house for sale in Upper Hampstead Walk, London, NW3 — £2,000,000 • 2 bed • 2 bath • 1266 ft²
3 bedroom maisonette for sale in New End, Hampstead, London, NW3 — £2,995,000 • 3 bed • 3 bath • 1675 ft²
5 bedroom house for sale in Gayton Road, Hampstead Village, NW3 — £3,950,000 • 5 bed • 4 bath • 2410 ft²
5 bedroom detached house for sale in Denning Road, Hampstead, London, NW3 — £6,500,000 • 5 bed • 3 bath • 4063 ft²
3 bedroom maisonette for sale in New End, London, NW3 — £2,995,000 • 3 bed • 3 bath • 1675 ft²










































































