Modern, low-maintenance village house with generous garden and flexible space.
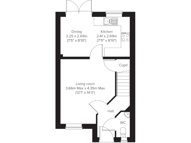
Open-plan kitchen/dining with French doors to large garden
En suite to principal bedroom; single main bathroom only
Compact third bedroom suited to study or occasional guest use
Built-in storage throughout; downstairs WC for convenience
Very large plot with extension/landscaping potential (subject to planning)
Freehold new-build; low immediate maintenance expected
Off-street parking on driveway; fast broadband and excellent mobile signal
Local crime levels above average; council tax banding not yet available
Light, low-maintenance and well laid out, this modern three-bedroom semi-detached house suits growing families or downsizers who still want flexible space. The ground floor offers an open-plan kitchen/dining room with French doors onto a surprisingly large rear garden, plus a separate living room and handy downstairs WC. Bedroom one benefits from an en suite; bedroom three is compact and sold as a flexible room or home-office/guest space.
At approximately 534 sq ft the house is small overall, but storage is built in throughout and the plot is very large, offering scope to landscape or extend (subject to planning). New-build specification and freehold tenure reduce immediate maintenance concerns; broadband is fast and mobile signal is excellent for remote working. Off-street parking is provided on the driveway.
Practical considerations: there is only one main bathroom, and the third bedroom is quite small. Local crime levels are above average, and council tax banding is not yet available until after occupation. The village setting gives access to primary and secondary schools rated Good to Outstanding and local amenities including a shop, inn and bus links.
This home will appeal to first-time buyers wanting a modern low-upkeep property, young families prioritising nearby schooling, and downsizers seeking a manageable house with outdoor space and potential to personalise over time.
3 bedroom detached house for sale in The Maples,
Long Green,
Braintree,
Essex,
CM77 8DL
, CM77 — £435,000 • 3 bed • 1 bath • 727 ft²
3 bedroom semi-detached house for sale in The Maples,
Long Green,
Braintree,
Essex,
CM77 8DL
, CM77 — £365,000 • 3 bed • 1 bath • 473 ft²
3 bedroom semi-detached house for sale in The Maples,
Long Green,
Braintree,
Essex,
CM77 8DL
, CM77 — £365,000 • 3 bed • 1 bath • 798 ft²
4 bedroom semi-detached house for sale in The Maples,
Long Green,
Braintree,
Essex,
CM77 8DL
, CM77 — £475,000 • 4 bed • 1 bath • 565 ft²
2 bedroom semi-detached house for sale in The Maples,
Long Green,
Braintree,
Essex,
CM77 8DL
, CM77 — £305,000 • 2 bed • 1 bath • 485 ft²
2 bedroom semi-detached house for sale in The Maples,
Long Green,
Braintree,
Essex,
CM77 8DL
, CM77 — £299,995 • 2 bed • 1 bath • 486 ft²


















































