Spacious period apartment with modern finishes and porter service.
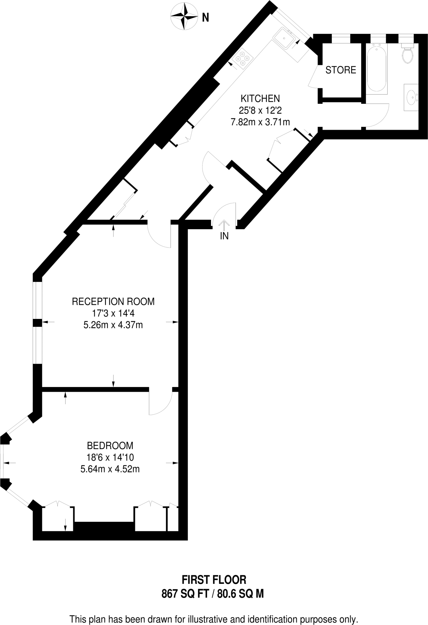
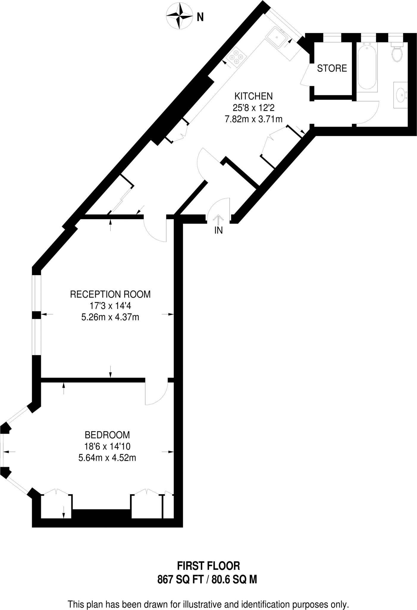
Generous 867 sq ft one-bedroom layout with original wood floors
Refurbished kitchen with dining space and ample storage
Elegant bathroom with mosaic glass backsplash, recently updated
Share of freehold with a very long lease (approx. 980 years)
No central heating system; electric heaters assumed
Solid brick walls with no insulation (likely higher heating costs)
Secondary glazing only, not full double glazing
Service charge approximately £3,500 per year
Set within a sought-after period mansion block in West Hampstead, this newly renovated one-bedroom apartment offers unusually generous room sizes for the area. At approximately 867 sq ft, the flat retains original wood floors and decorative moldings while showcasing a modern fitted kitchen and an elegant bathroom with mosaic glass details. A porter provides added convenience for daily life.
The reception room and double bedroom are both comfortable and well-lit, benefitting from large windows and built-in storage. The kitchen has space to dine and practical storage, making it suitable for entertaining or comfortable single/couple living. The long lease (share of freehold) and very low local crime rate add to the property's appeal.
Buyers should note some practical limitations: there is no central heating system present, so electric heaters are assumed, and the building has secondary glazing only. The building’s solid brick construction likely lacks insulation, which may affect heating costs and would benefit from targeted improvement works.
Service charges average around £3,500 per year; factor this into running-cost calculations. For buyers seeking a spacious, characterful home in an inner-city cosmopolitan location with excellent local schools and transport links, this apartment offers a rare combination of space, period charm, and recent refurbishment.
1 bedroom flat for sale in Kings Gardens,
West Hampstead, NW6 — £400,000 • 1 bed • 1 bath • 650 ft²
4 bedroom flat for sale in Kings Gardens, West Hampstead, London, NW6 — £1,850,000 • 4 bed • 3 bath • 2278 ft²
3 bedroom apartment for sale in Honeybourne Road, West Hampstead, NW6 — £895,000 • 3 bed • 2 bath • 1010 ft²
1 bedroom flat for sale in Prince Arthur Road, Hampstead, London, NW3 — £700,000 • 1 bed • 1 bath • 664 ft²
2 bedroom flat for sale in Kings Gardens, West Hampstead, London, NW6 — £650,000 • 2 bed • 1 bath • 768 ft²
3 bedroom flat for sale in Kings Gardens, West Hampstead, London, NW6 — £950,000 • 3 bed • 2 bath • 1139 ft²






































































