Energy-efficient three-bedroom house on a large plot, close to town and rail links.
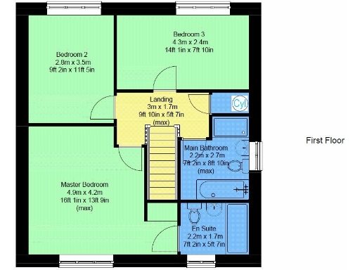
3 bedrooms with master en-suite and family bathroom
A-rated EPC; 3.6 kW solar PV estimated 3,000 kWh/year
Timber-frame new build (constructed 2020), low energy design
Huge private plot with front and rear gardens; maintenance required
Driveway parking for two cars; off-street parking provided
Approx 1,206 sq ft of living space; traditional two-storey layout
Freehold tenure; mains gas heating with boiler and radiators
Council tax not yet rated; nearby secondary school rated Requires Improvement
Set on a large plot in Tweedmouth, this three-bedroom detached home combines modern energy efficiency with practical family layout. Built in 2020 as a timber-frame new build, the property has an A-rated EPC and a 3.6 kW solar PV system expected to generate over 3,000 kWh annually — likely saving around £500 per year and offering scope to add battery storage.
The ground floor offers a reception hall, sitting room, dining kitchen, utility and WC; upstairs are three bedrooms (master with en-suite) and a family bathroom. Off-street parking for two cars and private front and rear gardens suit family life and outdoor space requirements. The house totals about 1,206 sq ft and benefits from mains gas central heating, fast broadband and excellent mobile signal.
Location is convenient for daily life and commuting: Berwick town centre and local amenities are close by, Berwick train station is about 2 miles away with regular services to Edinburgh and Newcastle, and the A1 provides easy road links. The surrounding area offers beaches, countryside and local leisure facilities, with a range of primary and secondary schools nearby (mix of Good-rated primaries and one secondary noted as requiring improvement).
Practical notes: the property is freehold and low-energy by design, but council tax is not yet rated. The large plot will need routine maintenance and landscaping decisions by a new owner. Early reservation opportunities exist to personalise finishes and options before completion.
3 bedroom detached house for sale in 20 Quarry Field, Tweedmouth, Berwick-upon-Tweed, Northumberland, TD15 — £350,000 • 3 bed • 2 bath • 1259 ft²
3 bedroom detached house for sale in 19 Quarry Field, Tweedmouth, Berwick-upon-Tweed, Northumberland, TD15 — £350,000 • 3 bed • 2 bath • 1259 ft²
4 bedroom detached house for sale in 2 Quarry Field, Berwick-Upon-Tweed, Northumberland, TD15 — £445,000 • 4 bed • 2 bath • 1326 ft²
4 bedroom detached bungalow for sale in Meadowdale, TD15 — £320,000 • 4 bed • 2 bath • 1297 ft²
5 bedroom detached house for sale in Burnside Cottage, Horndean, Berwick-upon-Tweed, TD15 — £499,950 • 5 bed • 3 bath • 1904 ft²
4 bedroom detached house for sale in Ivinson Road, Tweedmouth, TD15 — £299,950 • 4 bed • 2 bath • 1145 ft²






























