Move-in ready three-bed home near schools and amenities in quiet cul-de-sac.
Refitted family bathroom with heated towel rail and modern fittings|Replacement double glazing throughout, installed after 2002|Two allocated off-street parking spaces directly to the rear|Separate sitting and dining rooms plus conservatory opening to garden|Freehold property, council tax band C, complete onward chain|Small overall size (approx 721 sq ft); limited internal space|Single bathroom only; may be tight for larger families|Local recorded crime rate is above average — check local stats
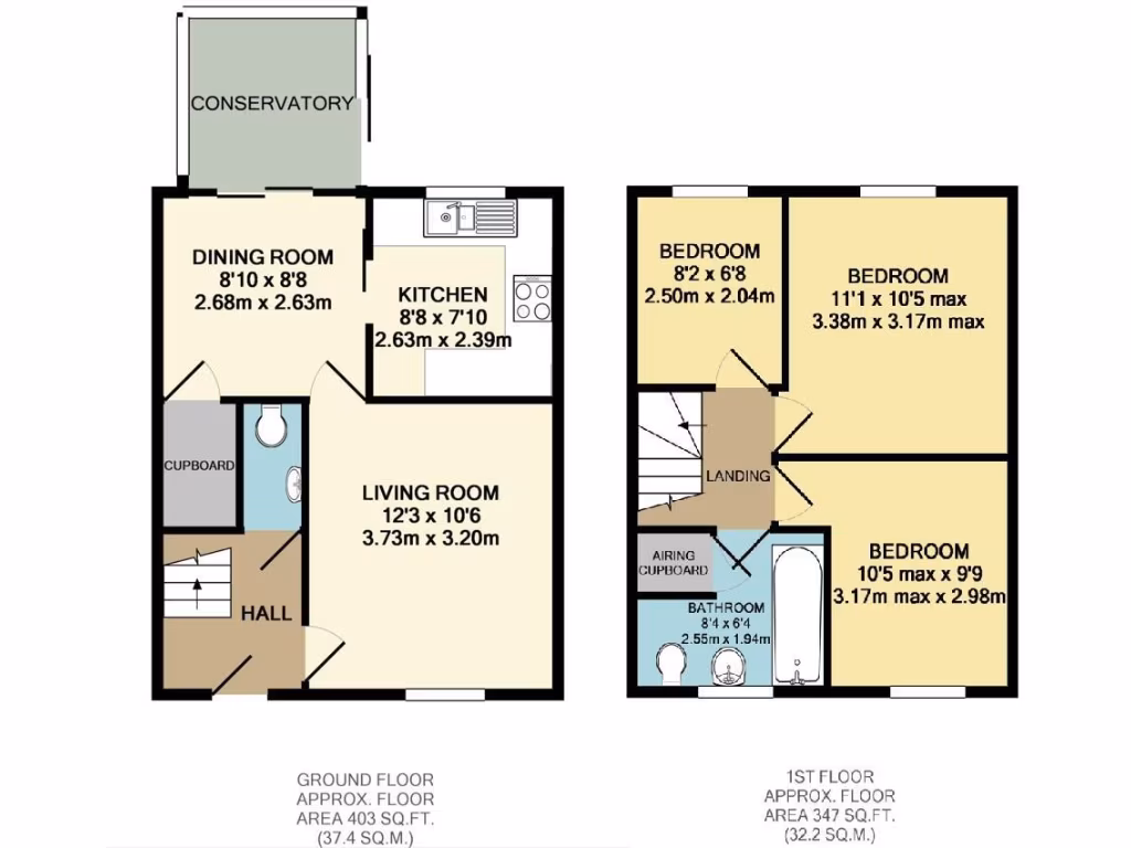
Light, well-presented three-bedroom home in a quiet Winslow cul-de-sac, suited to first-time buyers or young families. The property has been recently renovated with a refitted family bathroom and replacement double glazing, giving a modern, low-maintenance interior ready to move into.
Downstairs offers a practical layout with separate sitting and dining rooms plus a conservatory that opens onto a private rear garden. The kitchen includes fitted units and space for appliances; an airing cupboard houses the combi boiler. Two allocated off-street parking spaces lie immediately to the rear.
The house is freehold, on a small plot (approx 721 sq ft) and sits within walking distance of shops, parks and several schools. Broadband and mobile signal are strong, and the property benefits from mains gas central heating; council tax is band C and the sale is part of a complete onward chain.
Important practical points: the home is relatively small with a single family bathroom and limited garden/plot size. Local recorded crime is above average, and the EPC is listed as TBC — buyers should verify energy performance and test all services during their enquiries.
3 bedroom end of terrace house for sale in Angels Close, Winslow, MK18 — £300,000 • 3 bed • 1 bath • 750 ft²
3 bedroom detached house for sale in Chequers End, Winslow, MK18 — £425,000 • 3 bed • 1 bath • 998 ft²
2 bedroom semi-detached house for sale in Angels Close, Winslow, Buckingham, MK18 — £265,000 • 2 bed • 1 bath • 555 ft²
3 bedroom semi-detached house for sale in Hedge Furlong, Winslow, Buckingham, MK18 — £420,000 • 3 bed • 2 bath • 1124 ft²
4 bedroom link detached house for sale in Walnut Tree Close, Winslow, Buckingham, MK18 — £500,000 • 4 bed • 2 bath • 1434 ft²
4 bedroom detached house for sale in Offas Lane, Winslow, Buckingham, Buckinghamshire, MK18 — £425,000 • 4 bed • 2 bath • 1246 ft²


















































































