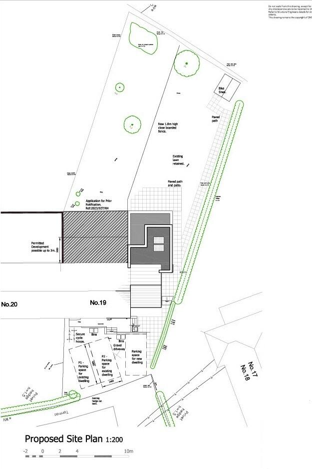
South-facing garden, approved plans and ample parking ideal for growing families or developers.
Freehold three-bedroom semi on a large plot backing open fields
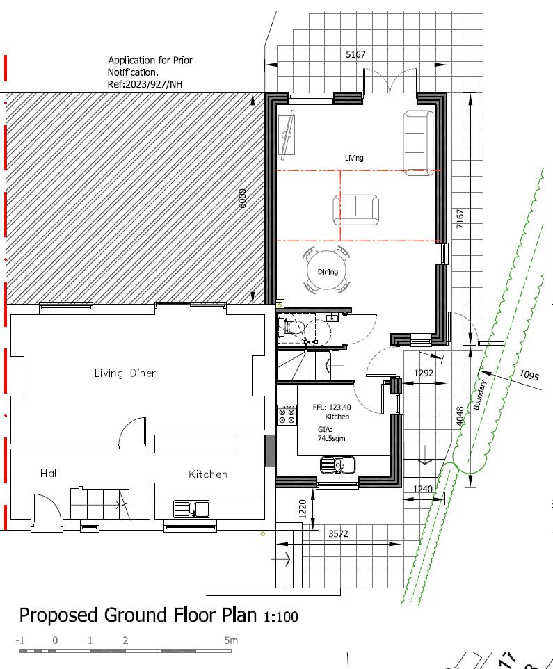
Set on a large plot backing directly onto open fields, this three-bedroom semi offers rare scope for expansion and strong family appeal. The property benefits from full planning consents for a single-storey 6m rear extension, a loft conversion and the addition of a two-storey dwelling, creating clear potential to increase living space or rental income. The south-facing rear garden and plentiful off-street parking for several vehicles are immediate lifestyle advantages.
The existing layout is straightforward and liveable: entrance hall, large open-plan sitting/dining room, kitchen, utility and cloakroom on the ground floor, with three bedrooms and a family bathroom upstairs. The house is freehold, gas central heated with radiators, and double glazed (units installed before 2002).
Buyers should note material points factually: the property dates from the 1950s–60s and cavity walls are assumed to lack insulation, glazing is older, and there is a single family bathroom. The area is classified with higher local deprivation indices and average broadband and mobile signal; crime levels are average. Taking on the permitted works will require budget and project management, though planning consents de-risk that process.
This home suits a growing family seeking rural backing fields and space to expand, or an investor/developer who can execute the approved plans to unlock significant added value. Local conveniences, a good primary school, and quick road and rail links to London make the location practical as well as picturesque.
3 bedroom semi-detached house for sale in Ockleys Mead, Godstone, RH9 — £425,000 • 3 bed • 1 bath • 835 ft²
3 bedroom semi-detached house for sale in Godstone Hill, Godstone, RH9 8AP, RH9 — £375,000 • 3 bed • 1 bath • 912 ft²
3 bedroom semi-detached house for sale in Orchard Lane, Godstone, RH9 — £450,000 • 3 bed • 2 bath • 1026 ft²
4 bedroom semi-detached house for sale in Tilburstow Cottages, Tilburstow Hill Road, Godstone, RH9 — £600,000 • 4 bed • 2 bath • 1121 ft²
3 bedroom end of terrace house for sale in Oxted Road, Godstone, RH9 — £450,000 • 3 bed • 1 bath • 914 ft²
3 bedroom semi-detached house for sale in Lagham Road, South Godstone, Godstone, RH9 — £425,000 • 3 bed • 1 bath • 893 ft²


































































