New-build, flexible three-bedroom layout with garden and two parking spaces.
Upgraded kitchen included with the sale
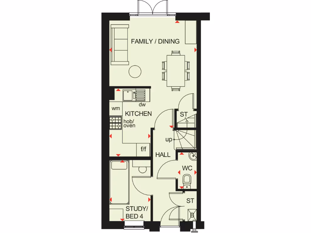
This three-bedroom, three-storey end-of-terrace is a new-build home at Aston Grange, arranged for flexible family living. The ground floor open-plan kitchen/diner opens via French doors to the rear garden, and an optional downstairs study provides a useful home-working space. The kitchen has been upgraded and the sale includes stamp duty paid plus part-exchange availability, reducing upfront costs.
The first-floor lounge and main bedroom with en suite create a comfortable middle level, while two double bedrooms and a family bathroom occupy the top floor. The layout works well for families wanting separate living and sleeping zones, or for buyers seeking adaptable space for working from home. Two off-street parking spaces add practical convenience in a village setting.
Practical points to note: the home is small overall (approximately 759 sq ft) and has a single family bathroom plus one en suite. The plot and front garden are modest in size compared with some neighbouring homes. Local crime levels are reported above average, so factor that into long-term comfort and security plans. Broadband is average, though mobile signal is excellent.
Aston Grange offers extensive communal green space and new landscaping, with nearby primary and secondary schools rated Good. For buyers seeking a modern, low-maintenance new build in a rural-adjacent village with commuter links, this property represents a straightforward, turn-key option with financial incentives. For those needing larger rooms, more outdoor space, or additional bathrooms, a larger plot or different layout may be preferable.
4 bedroom detached house for sale in Upper Lighthorne, Leamington Spa, Warwickshire,
CV33 8AH, CV35 — £456,995 • 4 bed • 1 bath • 866 ft²
3 bedroom detached house for sale in Upper Lighthorne, Leamington Spa, Warwickshire,
CV33 8AH, CV35 — £382,995 • 3 bed • 1 bath • 771 ft²
4 bedroom end of terrace house for sale in Upper Lighthorne, Leamington Spa, Warwickshire,
CV33 8AH, CV35 — £459,995 • 4 bed • 1 bath • 1141 ft²
3 bedroom end of terrace house for sale in Upper Lighthorne, Leamington Spa, Warwickshire,
CV33 8AH, CV35 — £349,995 • 3 bed • 1 bath • 674 ft²
3 bedroom end of terrace house for sale in Aston Grange, Banbury Road, Upper Lighthorne, Warwickshire, CV35 — £419,995 • 3 bed • 2 bath • 1159 ft²
4 bedroom end of terrace house for sale in Upper Lighthorne, Leamington Spa, Warwickshire,
CV33 8AH, CV35 — £467,995 • 4 bed • 1 bath • 1141 ft²


















































































