Spacious three-bedroom house with garden and field views in a sought-after Werrington location.
Detached 1940s home on a generous, private plot
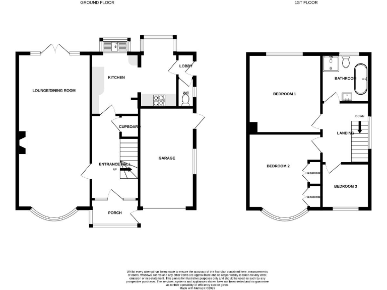
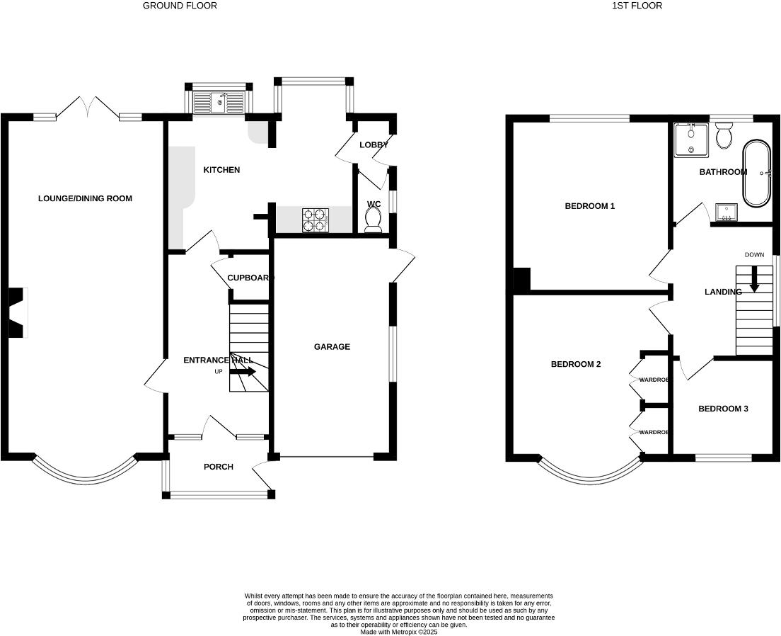
Set on a generous plot in sought-after Werrington, this 1940s detached home offers comfortable family living with countryside views. The ground floor flows from a Tudor-style porch into a parquet-floored hall, a bay-fronted lounge with a multi-fuel burner and an open-plan dining area — ideal for everyday family life and relaxed entertaining. The kitchen faces fields, bringing light and a pleasant outlook to the rear.
Upstairs are three good-size bedrooms and a modern family bathroom with a white suite, suitable for growing families. Outside, the driveway provides ample off-street parking for multiple vehicles and the private rear garden has lawn and a patio for outdoor play and summer entertaining. Broadband is fast and mobile signal excellent — useful for homeworking and streaming.
Practical points to note: the property has an EPC rating of D and is a period home from the post-war era, so there will be some typical maintenance and retrofit opportunities to improve energy performance. With Freehold tenure and no flood risk, it represents a solid family purchase in a very affluent, low-crime neighbourhood close to several well-rated primary and secondary schools.
2 bedroom detached house for sale in Armshead Road, Werrington, Stoke On Trent, ST9 0EG, ST9 — £280,000 • 2 bed • 1 bath
3 bedroom semi-detached house for sale in Cellarhead Road, Werrington, ST9 — £285,000 • 3 bed • 1 bath • 786 ft²
3 bedroom semi-detached house for sale in Ash Bank Road, Stoke-On-Trent, ST2 — £230,000 • 3 bed • 1 bath • 836 ft²
3 bedroom semi-detached house for sale in Ash Bank Road, Ash Bank, ST2 — £325,000 • 3 bed • 2 bath • 1249 ft²
3 bedroom detached house for sale in Armshead Road, Werrington, Staffordshire Moorlands, ST9 0NB, ST9 — £300,000 • 3 bed • 1 bath
3 bedroom semi-detached house for sale in Hewitt Crescent, Werrington, Stoke On Trent, ST9 0LQ, ST9 — £240,000 • 3 bed • 1 bath














































