Chain-free 4-bed detached home with large west-facing garden and easy walk to Dormans station..
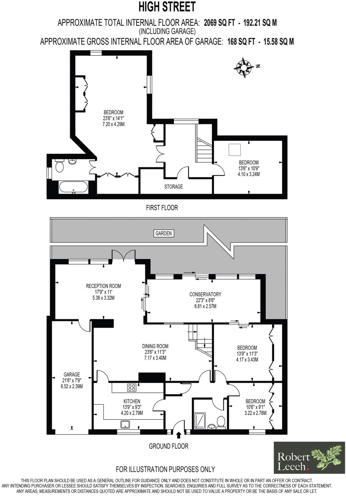
- Chain-free detached house over 2,000 sq ft
- Large west-facing private garden, ideal for entertaining
- Attached garage plus wide driveway for multiple cars
- In walking distance to Dormans railway station
- Two reception rooms, conservatory; flexible family layout
- Built before 1900; solid brick walls assumed uninsulated
- Glazing type undefined; likely scope for energy upgrades
- Council tax listed as expensive; tenure not specified
Set on a generous plot in Dormansland, this detached, chain-free house offers more than 2,000 sq ft of flexible family accommodation and a large westerly-facing garden ideal for afternoon sun and entertaining. The ground floor layout provides a bright reception room, dining room, conservatory and a centrally positioned kitchen, with two bedrooms and a family bathroom also on the ground floor for convenient single-level living. Upstairs there are two further bedrooms including a large principal bedroom and a second bathroom.
Practical benefits include an attached garage, wide gravel driveway with ample parking, mains gas central heating and excellent mobile and broadband connectivity. The property is a short walk from Dormans railway station and close to local shops, pubs and well-regarded schools including Dormansland Primary and Lingfield College — a strong location for commuting and family life.
Buyers should note this is an older property (constructed before 1900) with solid brick walls that are assumed uninsulated; the glazing type is undefined. The house will benefit from targeted updating and insulation upgrades to improve energy efficiency and running costs. Council tax is noted as expensive and tenure currently unspecified, so purchasers should confirm these details early in the process.
Overall this is a spacious, characterful family home in a very affluent, well-connected village setting. It suits buyers seeking substantial accommodation and outdoor space with scope to modernise and personalise, and it will particularly appeal to families wanting easy access to schools and rail links while enjoying a private garden and generous parking.
5 bedroom detached house for sale in Kinnibrugh Drive, Dormansland, RH7 — £900,000 • 5 bed • 3 bath • 1960 ft²
5 bedroom detached house for sale in Kinnibrugh Drive, RH7 — £900,000 • 5 bed • 2 bath • 1785 ft²
3 bedroom house for sale in Hollow Lane, Dormansland, Lingfield, RH7 6NS, RH7 — £775,000 • 3 bed • 2 bath • 1646 ft²
4 bedroom detached house for sale in Racecourse Road, Dormansland, Lingfield, RH7 6PP, RH7 — £650,000 • 4 bed • 3 bath • 2500 ft²
5 bedroom detached house for sale in Kinnibrugh Drive, Dormansland, Lingfield, RH7 6QF, RH7 — £900,000 • 5 bed • 3 bath • 2000 ft²
4 bedroom detached house for sale in Tandridge Lane, Lingfield, RH7 6LL, RH7 — £750,000 • 4 bed • 2 bath • 1794 ft²


































































































