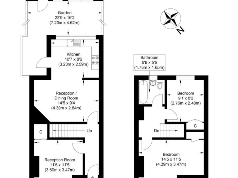
**Standout Features:**
- Freehold terraced house in N9, chain-free
- Two bedrooms and one bathroom
- Private garden with storage shed
- Off-street parking available
- Bright and airy reception area with natural light
- Easy access to transport links and local amenities
- Gas central heating and double glazing for energy efficiency
**Concerns:**
- Average condition; may require some updating
- Crime rate above average in the area
- Located in an area classified as very deprived
This well-presented two-bedroom terraced home, located in the diverse and vibrant N9 area, is an excellent opportunity for first-time buyers or families seeking comfort and convenience. Featuring a spacious living room bathed in natural light, a modern fully fitted kitchen, and a private garden complete with a storage shed, this property balances indoor and outdoor enjoyment.
With off-street parking and energy-efficient features like gas central heating and double glazing, the home is designed for comfort. It is ideally situated within reach of Edmonton train station, enhancing your daily commute into the city. The surrounding neighborhood offers local shops and schools, fostering a community atmosphere.
While the area has its challenges, including a higher crime rate and classifications of deprivation, the potential here is undeniable, especially given the property's freehold status. Don't miss out on this opportunity—early viewing is essential, as homes in this desirable area won't last long!
3 bedroom semi-detached house for sale in Latymer Way, London, N9 — £470,000 • 3 bed • 2 bath • 927 ft²
3 bedroom terraced house for sale in Chichester Road, London, N9 — £465,000 • 3 bed • 1 bath • 756 ft²
2 bedroom terraced house for sale in Woodlands Road, Edmonton, N9 — £390,000 • 2 bed • 1 bath • 761 ft²
3 bedroom terraced house for sale in Nelson Road, LONDON, London, N9 — £450,000 • 3 bed • 1 bath • 886 ft²
3 bedroom terraced house for sale in Bridlington Road, London, N9 — £485,000 • 3 bed • 2 bath • 1024 ft²
2 bedroom terraced house for sale in Tramway Avenue, London, N9 — £399,950 • 2 bed • 2 bath • 960 ft²


















































